Plan No.537830
Beautiful Hillside Home
The combination of brick and stone material add color and texture to the exterior of this beautiful one level home. The open foyer boasts an 11' ceiling height and offers views to the formal dining room and through the great room to the rear covered deck. A beamed ceiling tops the great room at a 12' height and a fireplace and built-ins decorate one wall. A breakfast area, sitting area and stylish kitchen create a family center where an angled counter provides seating and is open to the great room. A butler's pantry offers convenience for serving to the dining room. Split bedrooms offer privacy to the master bedroom suite where a 10' ceiling height, luxurious dressing area and access to the rear covered deck pampers the homeowner. A library with built-in shelving and angled walls provides an area dedicated for organized work at home.
Specifications
Total 2904 sq ft
- Main: 2904
- Second: 0
- Third: 0
- Loft/Bonus: 0
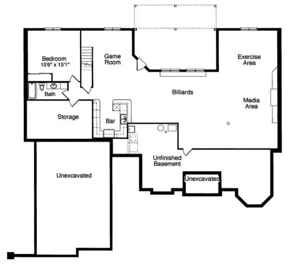
- Basement: 1905
- Garage: 743
Rooms
- Beds: 3
- Baths: 2
- 1/2 Bath: 1
- 3/4 Bath: 0
Ceiling Height
- Main: 9'0
- Second:
- Third:
- Loft/Bonus:
- Basement: 8'0
- Garage: 10'4
Details
- Exterior Walls: 2x4
- Garage Type: tripleGarage
- Width: 76'0
- Depth: 68'1
Roof
- Max Ridge Height: 29'0
- Comments: ()
- Primary Pitch: 8/12
- Secondary Pitch: 0/12

833–493–0942


