Plan No.280004
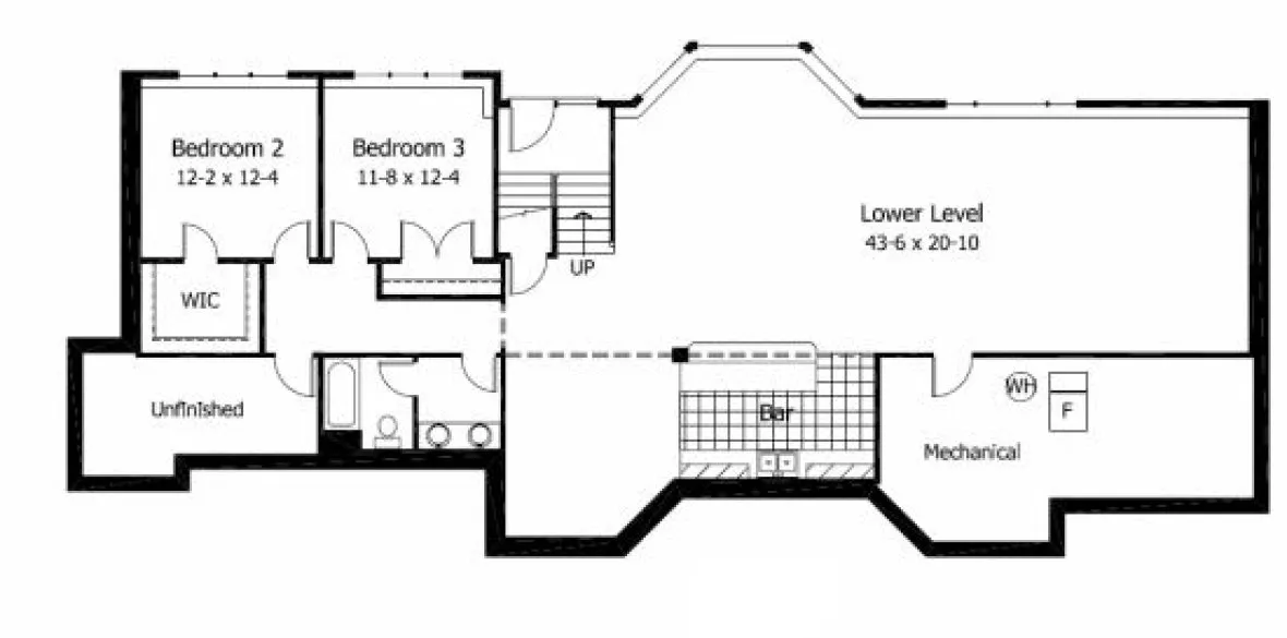
Basement also includes 600 sq. ft. of unfinished space plus the 1690 sq. ft. finished for a total of 2290 sq. ft.
Specifications
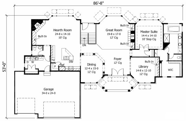
Total 3980 sq ft
- Main: 2290
- Second: 0
- Third: 0
- Loft/Bonus: 0
- Basement: 1690
- Garage: 724
Rooms
- Beds: 3
- Baths: 2
- 1/2 Bath: 2
- 3/4 Bath: 0
Ceiling Height
- Main: 10'0
- Second:
- Third:
- Loft/Bonus:
- Basement: 9'0
- Garage: 11'4
Details
- Exterior Walls: 2x6
- Garage Type: tripleGarage
- Width: 85'6
- Depth: 52'0
Roof
- Max Ridge Height: 25'6
- Comments: (Main Floor to Peak)
- Primary Pitch: 9/12
- Secondary Pitch: 10/12
Add to Cart
Pricing
Full Rendering – westhomeplanners.com
MAIN Plan – westhomeplanners.com
BASEMENT Plan – westhomeplanners.com
Artist's Sketch – westhomeplanners.com
Front Entry – westhomeplanners.com
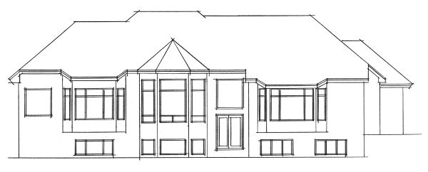
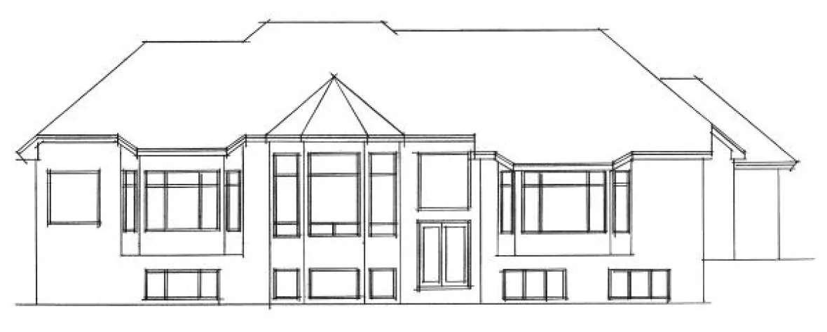
Rear Photo – westhomeplanners.com
Front Photo – westhomeplanners.com
Great Room – westhomeplanners.com
Hearth Room – westhomeplanners.com
REAR Elevation – westhomeplanners.com
[Back to Search Results]

833–493–0942








