Plan No.102018
Rustic A-Frame
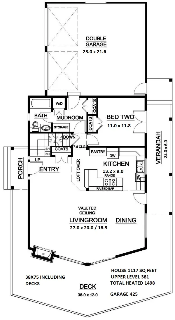
The welcoming and rustic façade complete with fieldstone fireplace and plenty of outdoor living area makes a good first impression. Inside this two bedroom A-Frame you will find a great floor plan, lots of open space, good-sized closets and a large open kitchen. A private Verandah is easily accessible from the Kitchen and Bedroom 2. The mudroom/laundry with a coat closet is very practical and connects directly to the spacious double garage. Upstairs, a private Master Retreat features a walk-in closet, a bathroom with a whirlpool tub and even a cozy deck accessed thru a french door. THE MATERIALS LIST IS ONLY AVAILABLE FOR THE WALK OUT BASEMENT VERSION
Specifications
Total 1498 sq ft
- Main: 1117
- Second: 381
- Third: 0
- Loft/Bonus: 0
- Basement: 1064
- Garage: 528
Rooms
- Beds: 2
- Baths: 2
- 1/2 Bath: 0
- 3/4 Bath: 0
Ceiling Height
- Main: 8'0
- Second: 8'0
- Third:
- Loft/Bonus:
- Basement: 8'0
- Garage:
Details
- Exterior Walls: 2x6
- Garage Type: doubleGarage
- Width: 38'0
- Depth: 75'0
Roof
- Max Ridge Height: 26'0
- Comments: (includes decks & verandah)
- Primary Pitch: 12/12
- Secondary Pitch: 4/12
Add to Cart
Pricing
Full Rendering – westhomeplanners.com
MAIN Plan – westhomeplanners.com
SECOND Plan – westhomeplanners.com
– westhomeplanners.com
Builder Modified – westhomeplanners.com
Builder Modified – westhomeplanners.com
REAR Elevation – westhomeplanners.com
LEFT Elevation – westhomeplanners.com
[Back to Search Results]

833–493–0942






