Plan No.102017
Nestled On A Hill
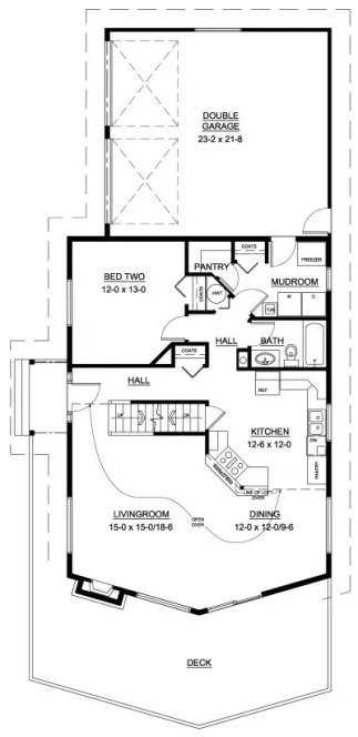
Please note: The width and depth of the house alone, 28'-0" x 62'-0" does not include the porch and deck. The overall dimensions including the porch and deck are 32'-0" x 74'-0". MATERIALS LIST IS ONLY AVAILABLE FOR THE WALK OUT FOUNDATION This plan also comes with a single car garage (14 feet wide) with the walkout basement foundation only and the upper balcony is converted to a sitting area. (102022).Triple garage (one RV garage 14 ft high with a gable added to the roof, on slab foundation, plan Reversed) [102023]It also comes with a triple car garage with the master on the main level. WIC bumping into the garage (Walk out foundation Reversed version only)[WP-3018) ]
Specifications
Total 1561 sq ft
- Main: 1064
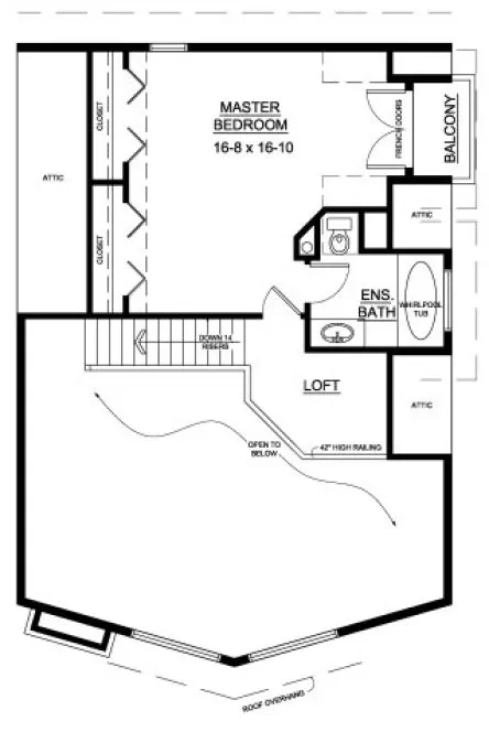
- Second: 497
- Third: 0
- Loft/Bonus: 0
- Basement: 1064
- Garage: 528
Rooms
- Beds: 2
- Baths: 2
- 1/2 Bath: 0
- 3/4 Bath: 0
Ceiling Height
- Main: 8'0
- Second: 8'0
- Third:
- Loft/Bonus:
- Basement: 8'0
- Garage: 9'4
Details
- Exterior Walls: 2x6
- Garage Type: 2 Car Garage
- Width: 32'0
- Depth: 74'0
Roof
- Max Ridge Height: 26'0
- Comments: ()
- Primary Pitch: 12/12
- Secondary Pitch: 4/12
Add to Cart
Pricing
– westhomeplanners.com
– westhomeplanners.com
– westhomeplanners.com
– westhomeplanners.com
– westhomeplanners.com
– westhomeplanners.com
[Back to Search Results]

833–493–0942




