Plan No.195254
Classic Country
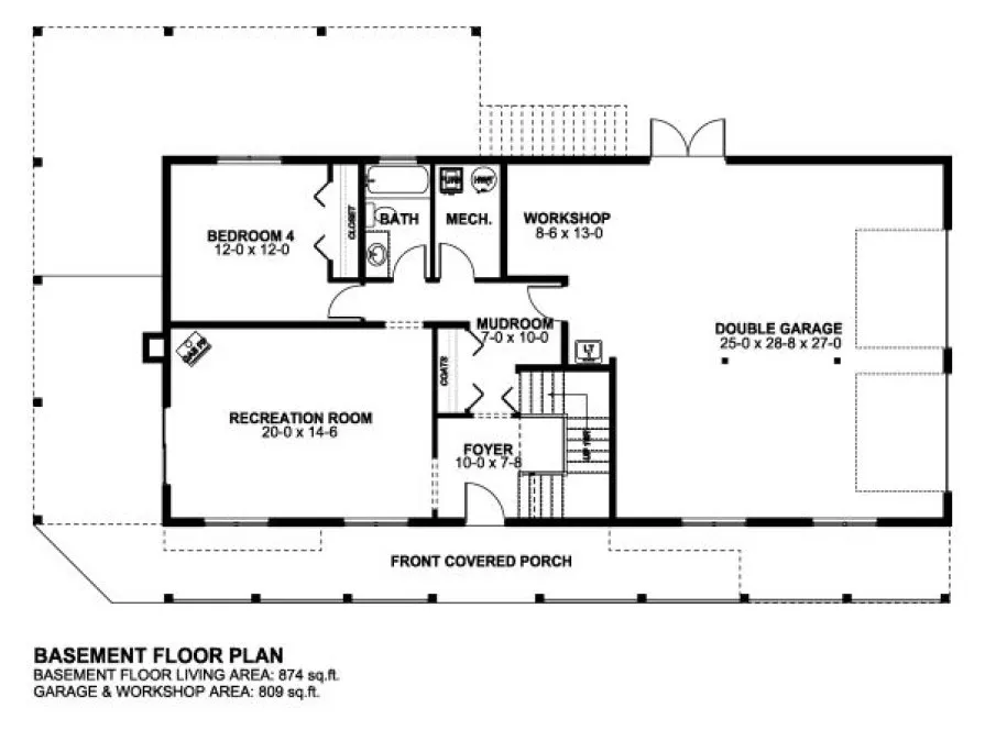
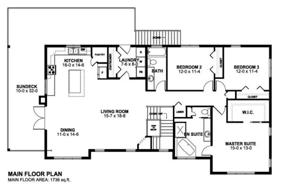
This classic country home has all the amenities for comfortable and practical living featuring open living areas, spacious decks, a large side entry garage and workshop.
Specifications
Total 2610 sq ft
- Main: 1736
- Second: 0
- Third: 0
- Loft/Bonus: 0
- Basement: 874
- Garage: 809
Rooms
- Beds: 4
- Baths: 3
- 1/2 Bath: 0
- 3/4 Bath: 0
Ceiling Height
- Main: 9'0
- Second:
- Third:
- Loft/Bonus:
- Basement: 9'0
- Garage: 9'4
Details
- Exterior Walls: 2x6
- Garage Type: doubleGarage
- Width: 70'0
- Depth: 44'0
Roof
- Max Ridge Height: 27'6
- Comments: ()
- Primary Pitch: 6/12
- Secondary Pitch: 4/12
Add to Cart
Pricing
– westhomeplanners.com
– westhomeplanners.com
– westhomeplanners.com
– westhomeplanners.com
– westhomeplanners.com
– westhomeplanners.com
– westhomeplanners.com
[Back to Search Results]

833–493–0942





