Plan No.195232
Excellent Family Duplex
The features in this classic duplex make for an excellent family home with all the amenities. Each side features unique layout options that can easily be incorporated in either unit. The area per unit is as follows: Lower Floor - 874 sq.ft.; Upper Floor – 1354 sq.ft.; Garage – 496 sq.ft.; Covered Porch – 118 sq.ft.; Covered Deck – 154 sq.ft.; Optional Basement: 895 sq.ft.
Specifications
Total 4456 sq ft
- Main: 874
- Second: 1354
- Third: 0
- Loft/Bonus: 0
- Basement: 895
- Garage: 498
Rooms
- Beds: 5
- Baths: 3
- 1/2 Bath: 0
- 3/4 Bath: 0
Ceiling Height
- Main: 9'0
- Second: 8'0
- Third:
- Loft/Bonus:
- Basement: 8'0
- Garage: 9'8
Details
- Exterior Walls: 2x6
- Garage Type: doubleGarage
- Width: 64'0
- Depth: 52'0
Roof
- Max Ridge Height: 30'6
- Comments: ()
- Primary Pitch: 5/12
- Secondary Pitch: 0/12
Add to Cart
Pricing
Full Rendering – westhomeplanners.com
MAIN Plan – westhomeplanners.com
SECOND Plan – westhomeplanners.com
– westhomeplanners.com
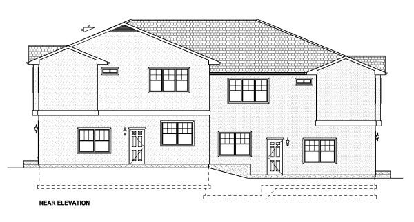
REAR Elevation – westhomeplanners.com
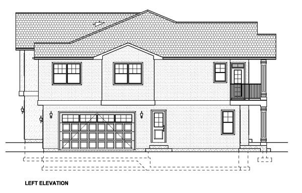
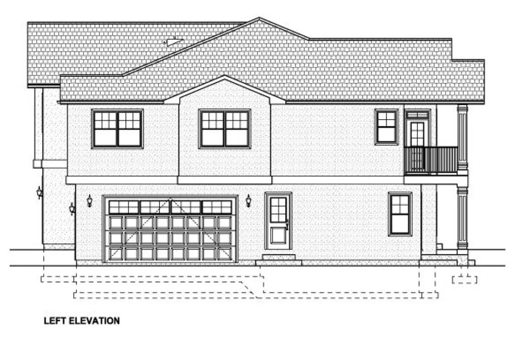
LEFT Elevation – westhomeplanners.com
RIGHT Elevation – westhomeplanners.com
[Back to Search Results]

833–493–0942





