Plan No.288063
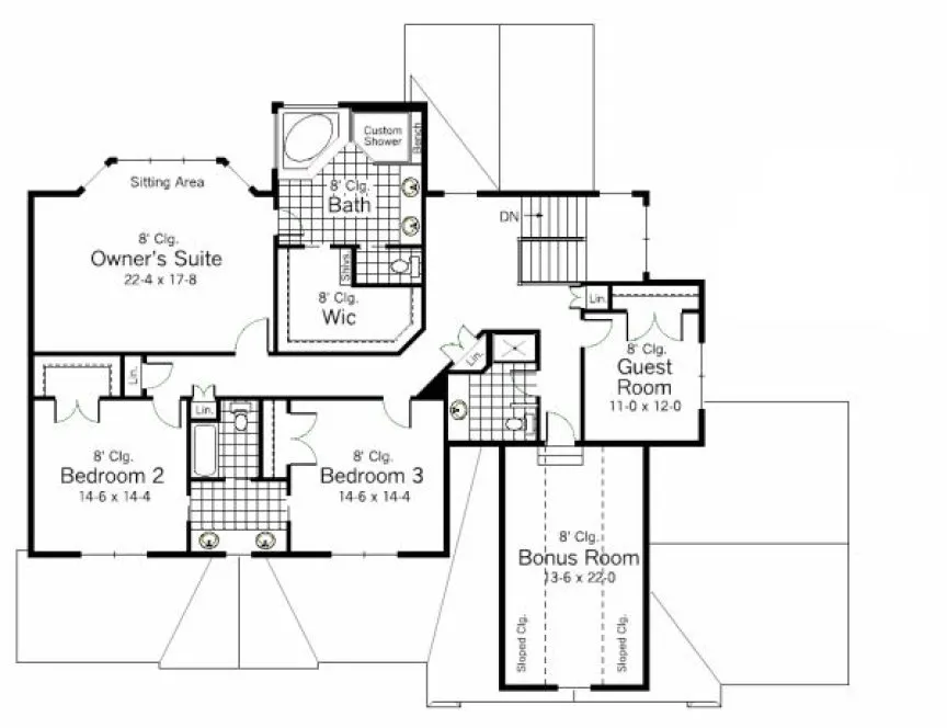
Please note that, upon completion, the bonus room would add 297 sq. ft. to the total finished area.
Specifications
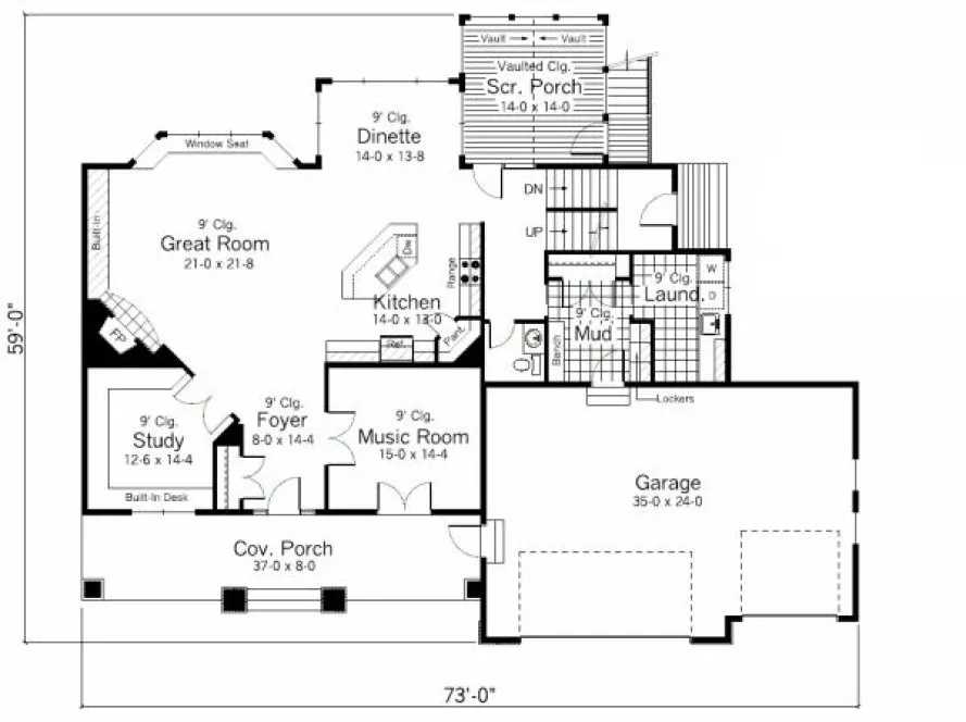
Total 3649 sq ft
- Main: 1849
- Second: 1800
- Third: 0
- Loft/Bonus: 0
- Basement: 1849
- Garage: 828
Rooms
- Beds: 4
- Baths: 3
- 1/2 Bath: 1
- 3/4 Bath: 0
Ceiling Height
- Main: 9'0
- Second: 8'0
- Third:
- Loft/Bonus:
- Basement: 9'0
- Garage: 10'4
Details
- Exterior Walls: 2x6
- Garage Type: tripleGarage
- Width: 73'0
- Depth: 59'0
Roof
- Max Ridge Height: 32'0
- Comments: (Main Floor to Peak)
- Primary Pitch: 9/12
- Secondary Pitch: 12/12
Add to Cart
Pricing
– westhomeplanners.com
– westhomeplanners.com
– westhomeplanners.com
– westhomeplanners.com
– westhomeplanners.com
[Back to Search Results]

833–493–0942



