Plan No.136054
Well-Appointed Design
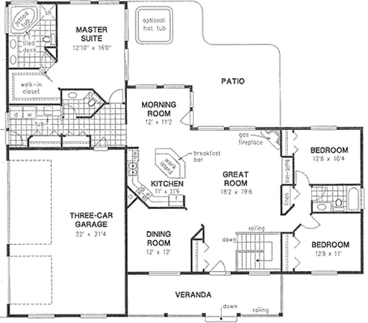
The stepped roofline and covered veranda with stone accented columns give this well-appointed home a look of distinction. Designed to focus on outdoor living all the rooms have large window areas and easy access to the rear patio. A handy Mudroom and Laundry area is closeby the islanded Kitchen and the secluded Master Suite is fully equipped.
Specifications
Total 2022 sq ft
- Main: 2022
- Second: 0
- Third: 0
- Loft/Bonus: 0
- Basement: 2022
- Garage: 704
Rooms
- Beds: 3
- Baths: 2
- 1/2 Bath: 1
- 3/4 Bath: 0
Ceiling Height
- Main: 9'0
- Second:
- Third:
- Loft/Bonus:
- Basement: 8'0
- Garage: 10'4
Details
- Exterior Walls: 2x6
- Garage Type: tripleGarage
- Width: 68'0
- Depth: 60'0
Roof
- Max Ridge Height: 22'2
- Comments: ()
- Primary Pitch: 8/12
- Secondary Pitch: 0/12
Add to Cart
Pricing
– westhomeplanners.com
– westhomeplanners.com
– westhomeplanners.com
[Back to Search Results]

833–493–0942

