Plan No.133054
Warm, Rustic Appeal
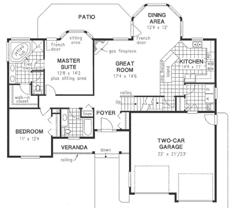
This quaint home has a warm rustic appeal with stone accents, shuttered windows and a front porch. The secluded Master Suite boasts a Walk-in Closet and a private Bath with a dual sink vanity, separate shower, and a whirlpool tub. There is a French door beside the Sitting area to access the rear patio.
Specifications
Total 1756 sq ft
- Main: 1756
- Second: 0
- Third: 0
- Loft/Bonus: 300
- Basement: 1756
- Garage: 484
Rooms
- Beds: 2
- Baths: 2
- 1/2 Bath: 0
- 3/4 Bath: 0
Ceiling Height
- Main: 9'0
- Second:
- Third:
- Loft/Bonus: 8'0
- Basement: 8'0
- Garage: 10'4
Details
- Exterior Walls: 2x6
- Garage Type: doubleGarage
- Width: 55'0
- Depth: 52'0
Roof
- Max Ridge Height: 22'0
- Comments: ()
- Primary Pitch: 9/12
- Secondary Pitch: 0/12
Add to Cart
Pricing
– westhomeplanners.com
Bonus Room – westhomeplanners.com
– westhomeplanners.com
– westhomeplanners.com
[Back to Search Results]

833–493–0942


