Plan No.337732
Specifications
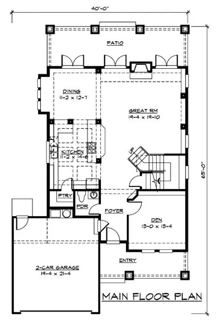
Total 2377 sq ft
- Main: 1260
- Second: 1117
- Third: 0
- Loft/Bonus: 0
- Basement: 0
- Garage: 434
Rooms
- Beds: 3
- Baths: 2
- 1/2 Bath: 1
- 3/4 Bath: 0
Ceiling Height
- Main:
- Second:
- Third:
- Loft/Bonus:
- Basement:
- Garage:
Details
- Exterior Walls: 2x6
- Garage Type: doubleGarage
- Width: 40'0"
- Depth: 65'0"
Roof
- Max Ridge Height: 27'0"
- Comments: ()
- Primary Pitch: 9/12
- Secondary Pitch: 0/12
Add to Cart
Pricing
– westhomeplanners.com
– westhomeplanners.com
– westhomeplanners.com
– westhomeplanners.com
[Back to Search Results]

833–493–0942


