Plan No.202008
Bay Windows Add Light And Beauty
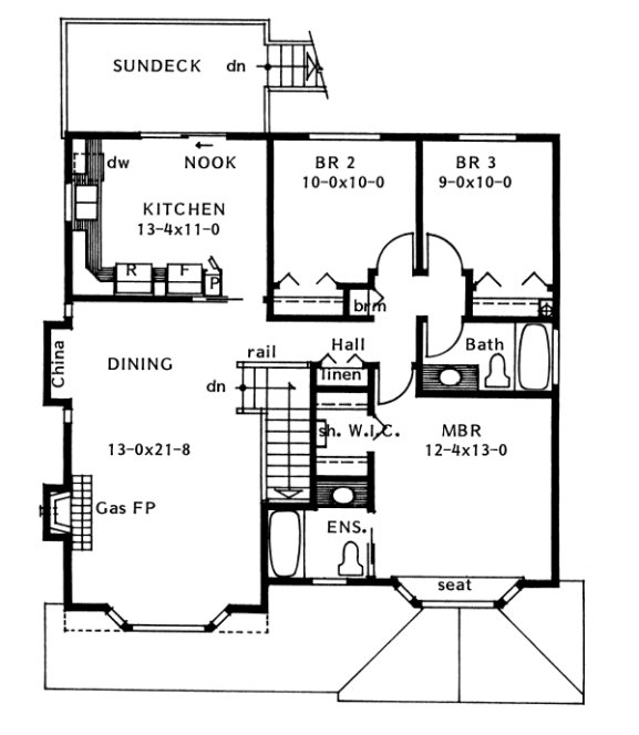
The big combination kitchen and nook provides ample space for family meals and the rear sundeck is easily accessed through sliding glass doors. The above ground basement has been carefully planned to allow for a suite with shared laundry facilities.
Specifications
Total 1204 sq ft
- Main: 1127
- Second: 0
- Third: 0
- Loft/Bonus: 0
- Basement: 930
- Garage: 287
Rooms
- Beds: 3
- Baths: 2
- 1/2 Bath: 0
- 3/4 Bath: 0
Ceiling Height
- Main: 8'0
- Second:
- Third:
- Loft/Bonus:
- Basement: 8'0
- Garage: 8'4
Details
- Exterior Walls: 2x6
- Garage Type: singleGarage
- Width: 34
- Depth: 38
Roof
- Max Ridge Height: 25
- Comments: ()
- Primary Pitch: 5/12
- Secondary Pitch: 0/12
Add to Cart
Pricing
– westhomeplanners.com
– westhomeplanners.com
– westhomeplanners.com
– westhomeplanners.com
[Back to Search Results]

833–493–0942


