Plan No.135544
Veranda Adorns Rancher
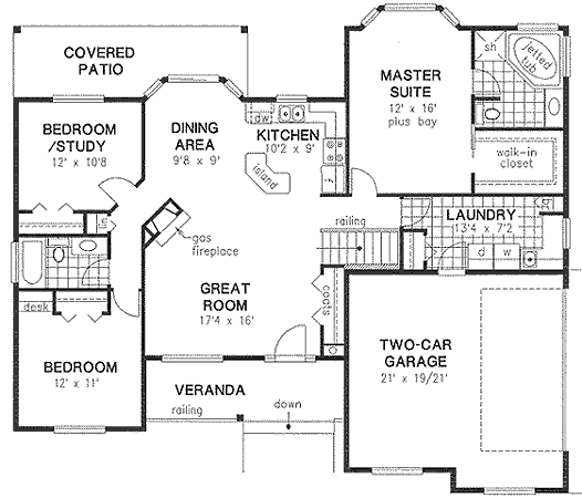
A front veranda adorns this cozy rancher. The central angled fireplace warms the spacious Great Room. All rooms have 9' ceiling heights. A gourmet Kitchen with a work island coveniently serves the sunny dining area. A deluxe Master Suite boasts a four piece master Bath and Walk-in Closet.
Specifications
Total 1511 sq ft
- Main: 1511
- Second: 0
- Third: 0
- Loft/Bonus: 0
- Basement: 1511
- Garage: 423
Rooms
- Beds: 3
- Baths: 2
- 1/2 Bath: 0
- 3/4 Bath: 0
Ceiling Height
- Main: 9'0
- Second:
- Third:
- Loft/Bonus:
- Basement: 8'0
- Garage: 9'4
Details
- Exterior Walls: 2x6
- Garage Type: doubleGarage
- Width: 54'6
- Depth: 48'0
Roof
- Max Ridge Height: 22'4
- Comments: ()
- Primary Pitch: 9/12
- Secondary Pitch: 0/12
Add to Cart
Pricing
Full Rendering – westhomeplanners.com
MAIN Plan – westhomeplanners.com
Front & Left Elevn – westhomeplanners.com
Rear & Right Elevn – westhomeplanners.com
Rear & Left Elevn – westhomeplanners.com
[Back to Search Results]

833–493–0942



