Plan No.349143
Compact & Loaded with Charm
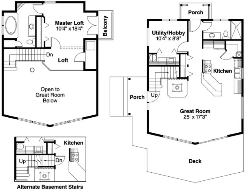
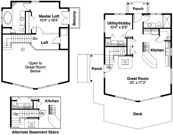
Designed as a vacation retreat home for a couple or single, this plan is as charming as it is compact. Windows, stacked three high, fill most of its A-frame rear wall, offering a panoramic view of the sea, lake, mountains, or other natural landscape. This plan is economical to build, heat and maintain. Its footprint, including porches, is only 31 feet wide and 38 feet deep. Clean-lined batt and boards cover the exterior, while sleek twin columns support covered porches on both the front and side. A lofty, two-story, vaulted ceiling adds to the expansive sense of openness in the great room. Warmth radiates out from the traditional wood stove to dry damp clothing, and ease the chill out of icy fingers and toes. And owners who install a stove with a glass front can indulge the relaxing pleasure of watching multicolored flames and the dancing shadows they cast. The kitchen is comparatively large for a home this size. It has a roomy walk-in pantry, and plenty of counter space. A raised conversation bar rims the outer edge of the angled peninsula. Sitting here on a cold day, you can soak up heat from the wood stove while chatting with folks in the kitchen and breathing in all the delightful cooking aromas. Storage closets line the hallway that leads to the front porch, bathroom, and combination utility/hobby room. Laundry appliances hide behind folding doors, so this space could also double as a guest room. The sleeping area of the master suite could be an entirely open-ended loft, or sectioned off behind the landing for more privacy. The master bathroom boasts a luxurious spa tub.
Specifications
Total 1211 sq ft
- Main: 845
- Second: 366
- Third: 0
- Loft/Bonus: 0
- Basement: 0
- Garage: 0
Rooms
- Beds: 1
- Baths: 2
- 1/2 Bath: 0
- 3/4 Bath: 0
Ceiling Height
- Main: 8'0
- Second: 8'0
- Third:
- Loft/Bonus:
- Basement:
- Garage:
Details
- Exterior Walls: 2x6
- Garage Type: none
- Width: 31'0
- Depth: 38'0
Roof
- Max Ridge Height: 23'9
- Comments: (Main Floor to Peak)
- Primary Pitch: 8/12
- Secondary Pitch: 0/12

833–493–0942





