Plan No.332505
Specifications
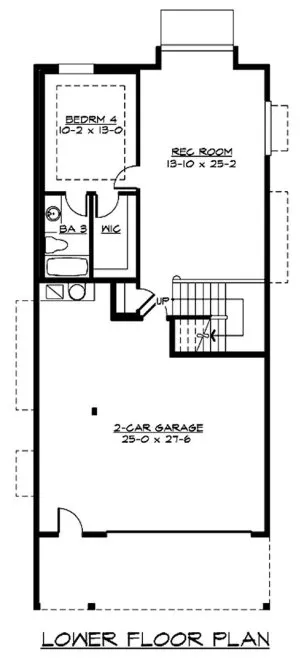
Total 3506 sq ft
- Main: 1419
- Second: 1328
- Third: 0
- Loft/Bonus: 0
- Basement: 759
- Garage: 611
Rooms
- Beds: 4
- Baths: 3
- 1/2 Bath: 1
- 3/4 Bath: 0
Ceiling Height
- Main:
- Second:
- Third:
- Loft/Bonus:
- Basement:
- Garage:
Details
- Exterior Walls: 2x6
- Garage Type: doubleGarage
- Width: 30'0"
- Depth: 62'0"
Roof
- Max Ridge Height: 25'0"
- Comments: ()
- Primary Pitch: 6/12
- Secondary Pitch: 0/12
Add to Cart
Pricing
– westhomeplanners.com
– westhomeplanners.com
– westhomeplanners.com
– westhomeplanners.com
– westhomeplanners.com
[Back to Search Results]

833–493–0942



