Plan No.342163
Naturally Bright Throughout
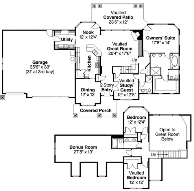
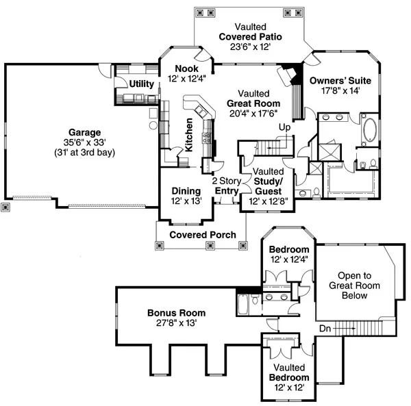
The Craftsman features that embellish this contemporary-country home entice passers-by into taking a second and even a third look. The most noticeable include: squared, tapered columns, supported by stone veneer bases; front-facing gables clad with shake-textured siding and highlighted by king posts and struts; and highly detailed windows, especially in the upper sections. It's a lot to appreciate, and that's just the exterior. Natural light illuminates the lofty two-story entry, washing in through sidelights and a gabled, second-level window. A wide opening on the left leads into a formal dining room, expanded by a rectangular window bay and linked to the large kitchen. Kitchen counters run along two sides, while an angled peninsula adds to this extensive workspace. A large walk-in pantry fills one corner, and a raised eating bar rims the peninsula. Working at the sink, you can keep an eye on activities in the nook and on the covered patio, and even enjoy the dancing flames in the vaulted great room's corner fireplace. The large utility room boasts a deep sink and a wide bench with storage below. This pass-through room also joins the kitchen to the three-car garage. Double doors to the right of the entry open into another vaulted room that could be outfitted as an office, guest room, or study. This room has direct access to a small bathroom. The shape of the owners' suite echoes the clipped corners of its tray ceiling. Luxuries in the private bathroom include: a deep soaking tub, oversized shower, dual vanity, large walk-in closet, and separately enclosed toilet and bidet. Two more bedrooms, a bathroom, and a large bonus room (519 additional sq. ft. when completed) are upstairs.
Specifications
Total 2544 sq ft
- Main: 1975
- Second: 569
- Third: 0
- Loft/Bonus: 0
- Basement: 0
- Garage: 1096
Rooms
- Beds: 3
- Baths: 3
- 1/2 Bath: 0
- 3/4 Bath: 0
Ceiling Height
- Main: 9'0
- Second: 8'0
- Third:
- Loft/Bonus:
- Basement:
- Garage: 10'4
Details
- Exterior Walls: 2x6
- Garage Type: tripleGarage
- Width: 88'0
- Depth: 55'0
Roof
- Max Ridge Height: 26'0
- Comments: ()
- Primary Pitch: 8/12
- Secondary Pitch: 0/12

833–493–0942

