Plan No.342653
Sturdy Outside, Modern Inside
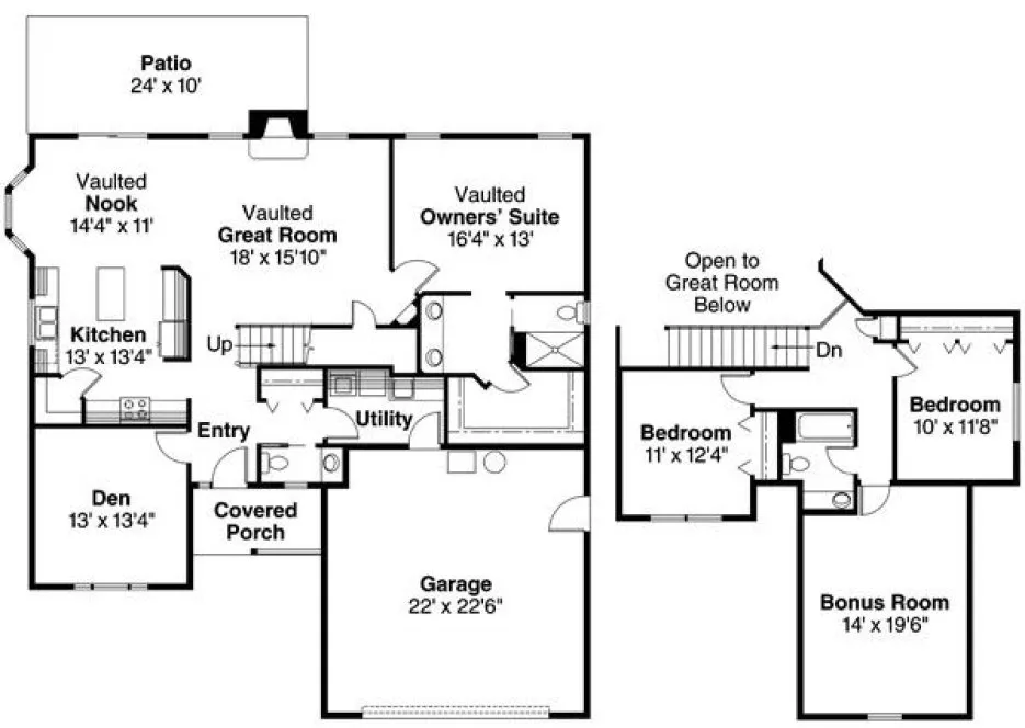
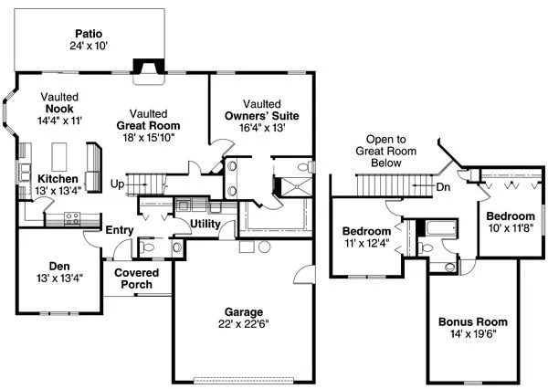
Engagingly traditional on the exterior, this home offers a comfortable array of popular contemporary amenities inside. Gathering places fill most of the ground floor, along with utilities, a half bath and spacious owners' suite. Two more bedrooms are upstairs, plus a bathroom and deep bonus room, which would add 287 sq. ft. to the area upon completion. The raised masonry keystone and lintel combine with stone veneer, multipaned windows, plus a wooden post and handrail to give it a comfortably solid, traditional look. A gabled garage with an arched window adds a dash of contemporary flavor. Passing through the covered porch, you step into an entry with a den on the left, and a hallway to the right. That hallway provides direct access to a powder room, coat closet and a utility room complete with a deep sink. Because the utility room links to the two-car garage, it also doubles as a mudroom, and provides a convenient pet sleeping area as well. Gathering spaces open out at the far end of the entry, just past the stairs. The great room flows unimpeded into a nook, expanded and brightened by a side window bay and sliding glass doors at the rear. Both areas have vaulted ceilings. Tall windows in the great room flank a gas fireplace where colorful flames and radiant warmth create a comforting focal point on dark days and nights. Cupboards and counters wrap around the C-shaped kitchen on three sides, plus there's even more work and storage space in the central work island. The step-in pantry fills an entire corner. A vaulted owners' suite fills the entire right side. Its long plant shelf rims the upper edge of the wall between the sleeping area and the private bathroom. Amenities include a dual vanity, step-in shower, and large walk-in closet.
Specifications
Total 2017 sq ft
- Main: 1530
- Second: 487
- Third: 0
- Loft/Bonus: 0
- Basement: 0
- Garage: 521
Rooms
- Beds: 3
- Baths: 2
- 1/2 Bath: 1
- 3/4 Bath: 0
Ceiling Height
- Main: 8'0
- Second: 8'0
- Third:
- Loft/Bonus:
- Basement:
- Garage: 9'4
Details
- Exterior Walls: 2x6
- Garage Type: doubleGarage
- Width: 50'0
- Depth: 52'0
Roof
- Max Ridge Height: 24'0
- Comments: (Main Floor to Peak)
- Primary Pitch: 8/12
- Secondary Pitch: 0/12

833–493–0942

