Plan No.342106
Duplex Full of Features
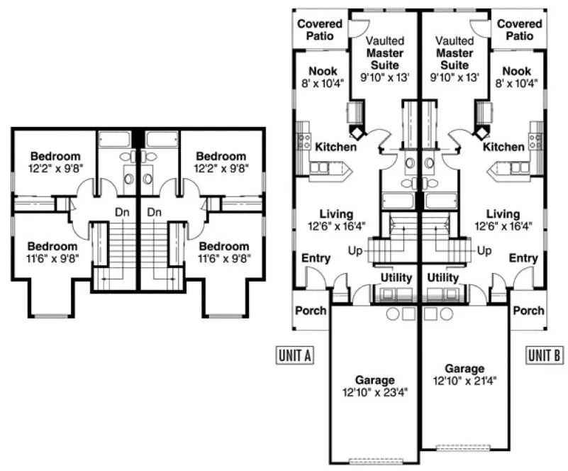
This plan is a charming, two-story duplex that packs a lot of living area into a fairly narrow footprint. TOTAL AREA OF BOTH DUPLEXES IS 2426 The entry porches and rear patios are widely separated, for maximum privacy. Each unit has three bedrooms. Four gables face the street. The widest caps both garages, while the narrower front gable highlights the extended garage on the left. Twin gables accent the matching dormers, set further back on the main roof. Inside, the two units are mirror images, so one description will suffice. Entry is via a recessed porch bounded by a slender post. A coat closet is just inside, near the door to the utility room. Direct garage access is also located at this juncture, as is a stairway to the second floor. The living room expands out from the entry, and is open to the kitchen across a raised eating bar. An optional TV cabinet fits in nicely along the living room's inner wall. Range and oven are built into the kitchen's longest counter. Sink and dishwasher are next to each other behind the eating bar, a handy spot to hang out and chat with people working in the kitchen. A small pantry fills the niche next to a refrigerator with overhead cabinets. The nook is naturally bright on all but the darkest days, and its wide sliding glass doors open onto a covered patio, which could be screened. A vaulted ceiling expands the main floor bedroom, which has direct patio access and links to the bathroom. Two more bedrooms are upstairs, along with another full bathroom. A wide dormer expands the front bedroom in both units.
Specifications
Total 1213 sq ft
- Main: 780
- Second: 433
- Third: 0
- Loft/Bonus: 0
- Basement: 0
- Garage: 320
Rooms
- Beds: 3
- Baths: 2
- 1/2 Bath: 0
- 3/4 Bath: 0
Ceiling Height
- Main: 8'0
- Second: 8'0
- Third:
- Loft/Bonus:
- Basement:
- Garage: 9'4
Details
- Exterior Walls: 2x6
- Garage Type: singleGarage
- Width: 38'0
- Depth: 68'0
Roof
- Max Ridge Height: 25'3
- Comments: ()
- Primary Pitch: 8/12
- Secondary Pitch: 0/12

833–493–0942

