Plan No.290292
Specifications
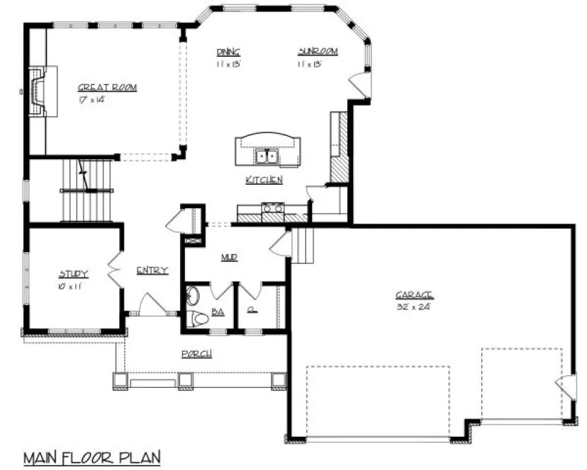
Total 2525 sq ft
- Main: 1245
- Second: 1280
- Third: 0
- Loft/Bonus: 0
- Basement: 1245
- Garage: 768
Rooms
- Beds: 4
- Baths: 2
- 1/2 Bath: 1
- 3/4 Bath: 0
Ceiling Height
- Main: 9'0"
- Second: 8'0"
- Third:
- Loft/Bonus:
- Basement: 8'0"
- Garage:
Details
- Exterior Walls: 2x6
- Garage Type: tripleGarage
- Width: 62'0"
- Depth: 47'0"
Roof
- Max Ridge Height: 30'0"
- Comments: ()
- Primary Pitch: 11/12
- Secondary Pitch: 9/12
Add to Cart
Pricing
– westhomeplanners.com
– westhomeplanners.com
– westhomeplanners.com
– westhomeplanners.com
[Back to Search Results]

833–493–0942


