Plan No.295092
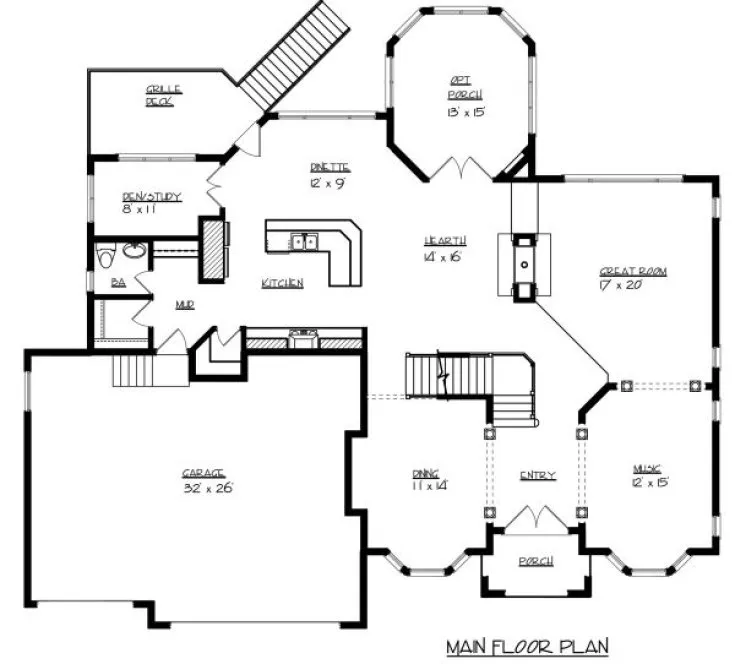
Please note that, if included, the optional porch would add 209 sq. ft. to the total completed area.
Specifications
Total 3487 sq ft
- Main: 1819
- Second: 1668
- Third: 0
- Loft/Bonus: 0
- Basement: 1819
- Garage: 832
Rooms
- Beds: 4
- Baths: 2
- 1/2 Bath: 1
- 3/4 Bath: 0
Ceiling Height
- Main: 9'0"
- Second: 8'0"
- Third:
- Loft/Bonus:
- Basement: 8'0"
- Garage: 10'4"
Details
- Exterior Walls: 2x6
- Garage Type: tripleGarage
- Width: 66'0"
- Depth: 59'0"
Roof
- Max Ridge Height: 30'0"
- Comments: ()
- Primary Pitch: 10/12
- Secondary Pitch: 9/12
Add to Cart
Pricing
– westhomeplanners.com
– westhomeplanners.com
– westhomeplanners.com
[Back to Search Results]

833–493–0942

