Plan No.146812
Cute Small Country Bungalow
Specifications
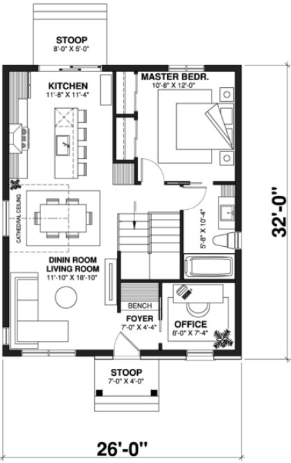
Total 832 sq ft
- Main: 832
- Second: 0
- Third: 0
- Loft/Bonus: 0
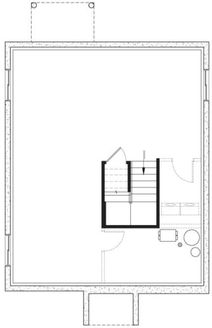
- Basement: 832
- Garage: 0
Rooms
- Beds: 2
- Baths: 1
- 1/2 Bath: 0
- 3/4 Bath: 0
Ceiling Height
- Main: 8'0
- Second:
- Third:
- Loft/Bonus:
- Basement: 8'0
- Garage:
Details
- Exterior Walls: 2x6
- Garage Type:
- Width: 26'0
- Depth: 32'0
Roof
- Max Ridge Height: 18'4
- Comments: (Main Floor to Peak)
- Primary Pitch: 6/12
- Secondary Pitch: 10/12
Add to Cart
Pricing
– westhomeplanners.com
– westhomeplanners.com
– westhomeplanners.com
Front & Left – westhomeplanners.com
– westhomeplanners.com
[Back to Search Results]

833–493–0942



