Plan No.143812
Ceiling is 10' high in Living Room.
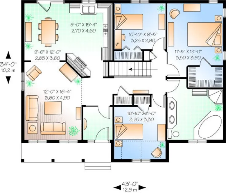
Specifications
Total 1339 sq ft
- Main: 1339
- Second: 0
- Third: 0
- Loft/Bonus: 0
- Basement: 1339
- Garage: 0
Rooms
- Beds: 3
- Baths: 1
- 1/2 Bath: 0
- 3/4 Bath: 0
Ceiling Height
- Main:
- Second:
- Third:
- Loft/Bonus:
- Basement:
- Garage:
Details
- Exterior Walls: 2x6
- Garage Type:
- Width: 43'0
- Depth: 34'0
Roof
- Max Ridge Height: 22'0
- Comments: ()
- Primary Pitch: 0/12
- Secondary Pitch: 0/12
Add to Cart
Pricing
– westhomeplanners.com
– westhomeplanners.com
– westhomeplanners.com
[Back to Search Results]

833–493–0942

