Plan No.490003
Please note that, upon completion, all future expansion areas would add 810 sq. ft. to the total finished area.
Specifications
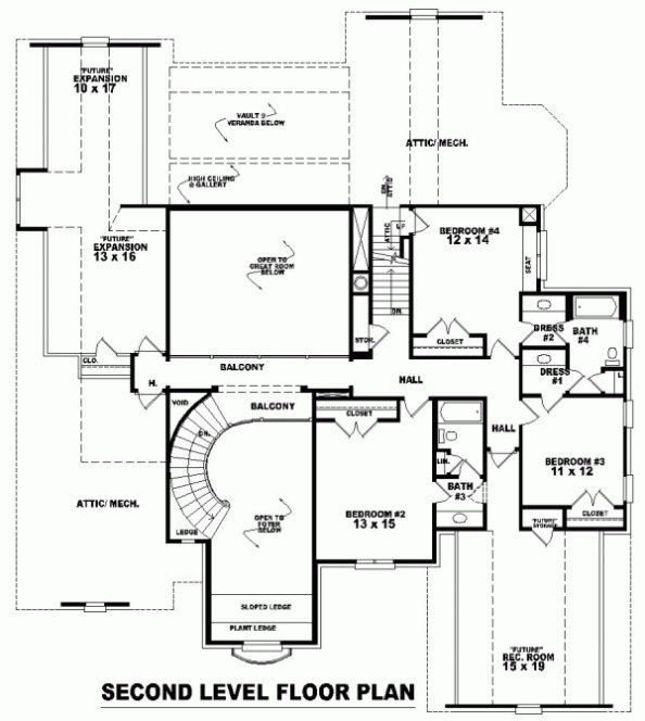
Total 4260 sq ft
- Main: 3030
- Second: 1230
- Third: 0
- Loft/Bonus: 0
- Basement: 0
- Garage: 651
Rooms
- Beds: 5
- Baths: 4
- 1/2 Bath: 1
- 3/4 Bath: 0
Ceiling Height
- Main: 10'0
- Second: 8'0
- Third:
- Loft/Bonus:
- Basement:
- Garage: 11'4
Details
- Exterior Walls: 2x4
- Garage Type: tripleGarage
- Width: 67'0
- Depth: 76'0
Roof
- Max Ridge Height: 34'0
- Comments: ()
- Primary Pitch: 16/12
- Secondary Pitch: 8/12
Add to Cart
Pricing
– westhomeplanners.com
– westhomeplanners.com
– westhomeplanners.com
– westhomeplanners.com
– westhomeplanners.com
[Back to Search Results]

833–493–0942



