Plan No.494121
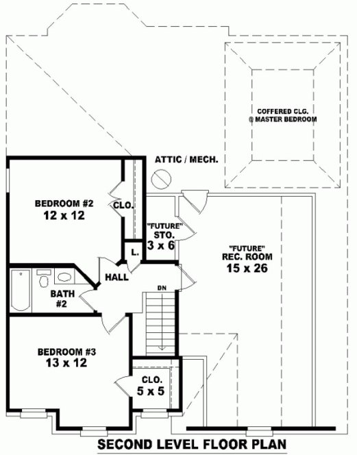
Please note that upon completion the "Future Rec. Room" would add 412 sq. ft. to the total finished area.
Specifications
Total 1761 sq ft
- Main: 1256
- Second: 505
- Third: 0
- Loft/Bonus: 0
- Basement: 0
- Garage: 360
Rooms
- Beds: 3
- Baths: 2
- 1/2 Bath: 1
- 3/4 Bath: 0
Ceiling Height
- Main: 8'0
- Second: 8'0
- Third:
- Loft/Bonus:
- Basement:
- Garage: 9'4
Details
- Exterior Walls: 2x4
- Garage Type: doubleGarage
- Width: 38'0
- Depth: 48'0
Roof
- Max Ridge Height: 27'0
- Comments: ()
- Primary Pitch: 16/12
- Secondary Pitch: 8/12
Add to Cart
Pricing
– westhomeplanners.com
– westhomeplanners.com
– westhomeplanners.com
[Back to Search Results]

833–493–0942

