Plan No.487061
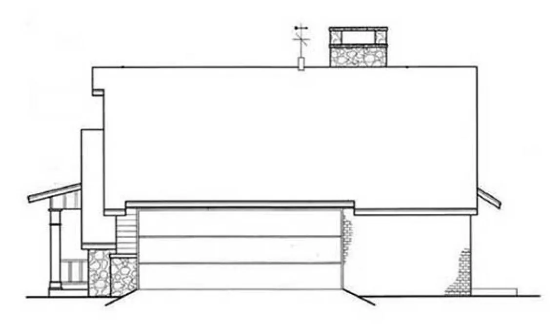
Authentic exterior portrays farmhouse of earlier times. Master bedroom complete with sitting room & garden window bath. Living room features sunken floor, 16' ceilings & stone fireplace.
Specifications
Total 1600 sq ft
- Main: 1600
- Second: 0
- Third: 0
- Loft/Bonus: 0
- Basement: 0
- Garage: 484
Rooms
- Beds: 3
- Baths: 2
- 1/2 Bath: 0
- 3/4 Bath: 0
Ceiling Height
- Main: 8'0
- Second:
- Third:
- Loft/Bonus:
- Basement:
- Garage: 9'4
Details
- Exterior Walls: 2x6
- Garage Type: doubleGarage
- Width: 75'0
- Depth: 37'0
Roof
- Max Ridge Height: 20'0
- Comments: ()
- Primary Pitch: 8/12
- Secondary Pitch: 0/12
Add to Cart
Pricing
– westhomeplanners.com
– westhomeplanners.com
Opt. Basement – westhomeplanners.com
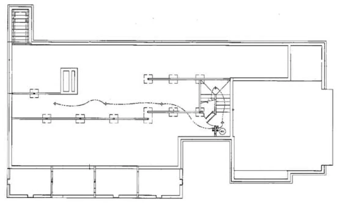
Stair Location – westhomeplanners.com
– westhomeplanners.com
– westhomeplanners.com
– westhomeplanners.com
[Back to Search Results]

833–493–0942





