Plan No.142902
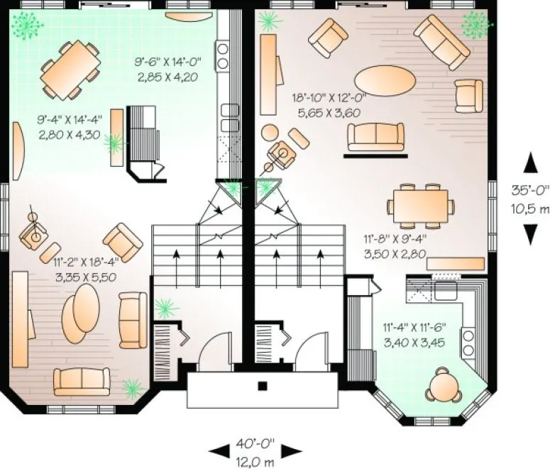
Each unit has a Main Floor of 652 sq. ft. and a Second Floor of 663 sq. ft. for a total finished area per unit of 1315 sq. ft. x 2 = total finished building area of 2630 sq. ft.
Specifications
Total 2630 sq ft
- Main: 652
- Second: 663
- Third: 0
- Loft/Bonus: 0
- Basement: 652
- Garage: 0
Rooms
- Beds: 3
- Baths: 1
- 1/2 Bath: 1
- 3/4 Bath: 0
Ceiling Height
- Main: 8'0
- Second: 8'0
- Third:
- Loft/Bonus:
- Basement: 8'0
- Garage:
Details
- Exterior Walls: 2x6
- Garage Type:
- Width: 40'0
- Depth: 35'0
Roof
- Max Ridge Height: 31'11
- Comments: ()
- Primary Pitch: 0/12
- Secondary Pitch: 0/12
Add to Cart
Pricing
– westhomeplanners.com
– westhomeplanners.com
– westhomeplanners.com
– westhomeplanners.com
[Back to Search Results]

833–493–0942


