Plan No.140802
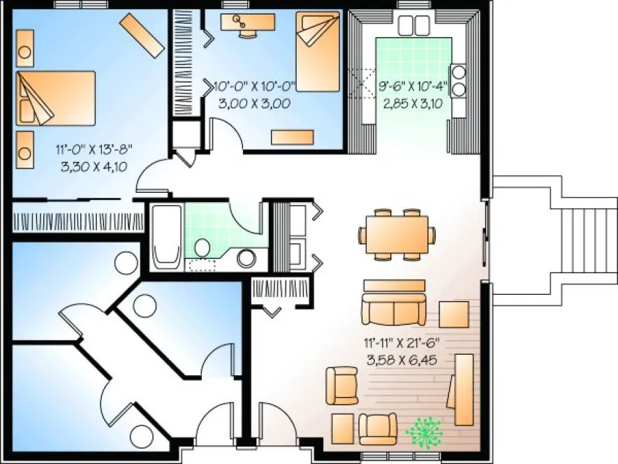
Each unit has a Main Floor of 608 sq. ft. and a Second Floor of 612 sq. ft. for a total finished area per unit of 1220 sq. ft. The Basement unit has an area of 957 sq. ft. When you combine all three units you arrive at a total finished building area of 3396 sq. ft.
Specifications
Total 3672 sq ft
- Main: 608
- Second: 612
- Third: 0
- Loft/Bonus: 0
- Basement: 478
- Garage: 0
Rooms
- Beds: 2
- Baths: 1
- 1/2 Bath: 1
- 3/4 Bath: 0
Ceiling Height
- Main: 8'0
- Second: 8'0
- Third:
- Loft/Bonus:
- Basement: 8'0
- Garage:
Details
- Exterior Walls: 2x6
- Garage Type:
- Width: 36'0
- Depth: 34'0
Roof
- Max Ridge Height: 32'9
- Comments: (Top of Foundtion to Peak)
- Primary Pitch: 0/12
- Secondary Pitch: 0/12
Add to Cart
Pricing
– westhomeplanners.com
– westhomeplanners.com
– westhomeplanners.com
– westhomeplanners.com
– westhomeplanners.com
[Back to Search Results]

833–493–0942



