Plan No.144602
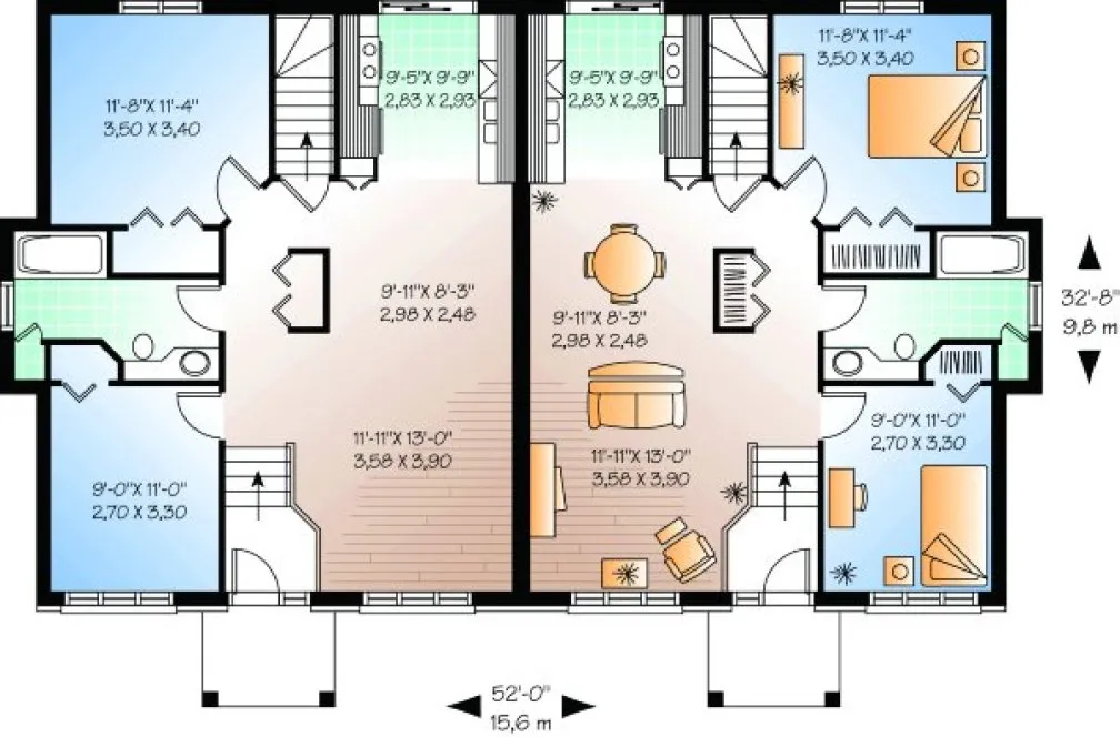
Each unit is 868 finished sq. ft. for a building total of 1736 finished sq. ft..
Specifications
Total 868 sq ft
- Main: 868
- Second: 0
- Third: 0
- Loft/Bonus: 0
- Basement: 849
- Garage: 0
Rooms
- Beds: 2
- Baths: 1
- 1/2 Bath: 0
- 3/4 Bath: 0
Ceiling Height
- Main: 8'0
- Second:
- Third:
- Loft/Bonus:
- Basement:
- Garage:
Details
- Exterior Walls: 2x6
- Garage Type:
- Width: 52'0
- Depth: 32'8
Roof
- Max Ridge Height: 19'1
- Comments: ()
- Primary Pitch: 0/12
- Secondary Pitch: 0/12
Add to Cart
Pricing
– westhomeplanners.com
– westhomeplanners.com
– westhomeplanners.com
[Back to Search Results]

833–493–0942

