Plan No.143373
Stunning Scandinavian Style
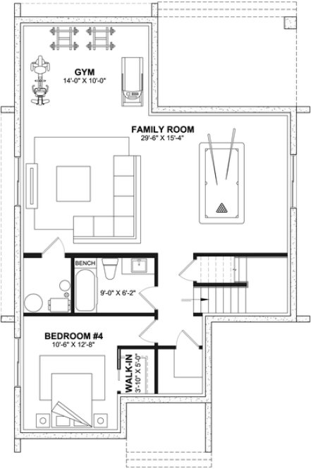
Modern Scandinavian family house plan with a 9'ceiling on the entire ground floor, except in the dining room where it is vaulted. A sheltered front porch (48 sq. ft.) and entrance with walk-in closet greets you. An Office is planned near the front entrance and the powder room. There is a Kitchen with pantry and island, open on one side to the dining room and on the other to the living room. The Living room features a fireplace and windows opening onto the terrace. A very bright dining room with cathedral ceiling has access to the sheltered terrace. The Family room boasts a central fireplace and built-in shelves on each side. There is a Bench in the staircase landing between the main floor and the second floor. The Main Bedroom Suite features an Ensuite equipped with a bath and a shower, as well as a walk-in closet. The 2 secondary bedrooms upstairs share a shower room. A laundry room completes the second floor of this house. The finished Basement adds a Family Room, Exercise area, Bedroom and Bath.
Specifications
Total 3370 sq ft
- Main: 1164
- Second: 1042
- Third: 0
- Loft/Bonus: 0
- Basement: 1164
- Garage: 0
Rooms
- Beds: 5
- Baths: 3
- 1/2 Bath: 1
- 3/4 Bath: 0
Ceiling Height
- Main: 9'0
- Second:
- Third:
- Loft/Bonus:
- Basement:
- Garage:
Details
- Exterior Walls: 2x6
- Garage Type: none
- Width: 34'6
- Depth: 50'0
Roof
- Max Ridge Height: 32'2
- Comments: (Top of Foundation to Peak)
- Primary Pitch: 0/12
- Secondary Pitch: 0/12

833–493–0942





