Plan No.330752
Craftsman Cottage with a Bonus
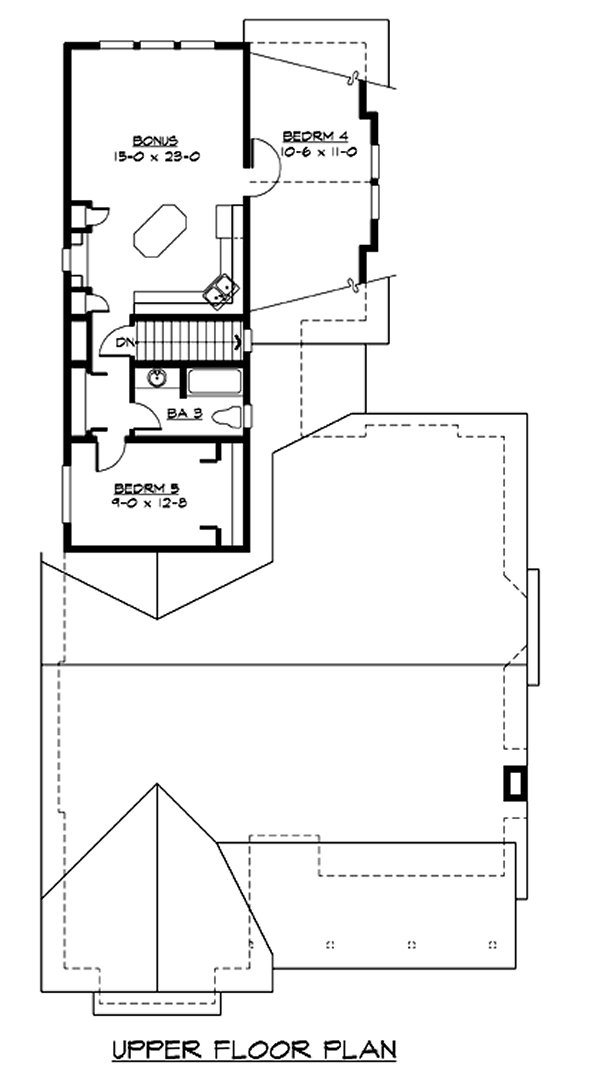
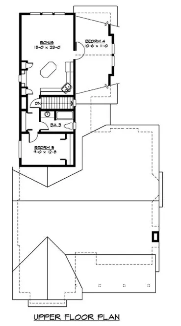
With a bay window in the dining room, a boxed bay window in the master suite and double doors in the living room leading out to a covered front porch, this beautiful craftsman style home includes many desirable features. An additional feature is the suite above the garage which includes a bonus room, kitchenette, two bedrooms and a full bath. A versatile space that could be used for in-laws or many other possibilities.
Specifications
Total 2570 sq ft
- Main: 1780
- Second: 790
- Third: 0
- Loft/Bonus: 0
- Basement: 0
- Garage: 650
Rooms
- Beds: 5
- Baths: 3
- 1/2 Bath: 0
- 3/4 Bath: 0
Ceiling Height
- Main:
- Second:
- Third:
- Loft/Bonus:
- Basement:
- Garage:
Details
- Exterior Walls: 2x6
- Garage Type: doubleGarage
- Width: 40'0
- Depth: 83'0
Roof
- Max Ridge Height:
- Comments: ()
- Primary Pitch: 8/12
- Secondary Pitch: 4/12
Add to Cart
Pricing
Full Rendering – westhomeplanners.com
MAIN Plan – westhomeplanners.com
SECOND Plan – westhomeplanners.com
REAR Elevation – westhomeplanners.com
[Back to Search Results]

833–493–0942


