Plan No.195004
Hit the Slopes
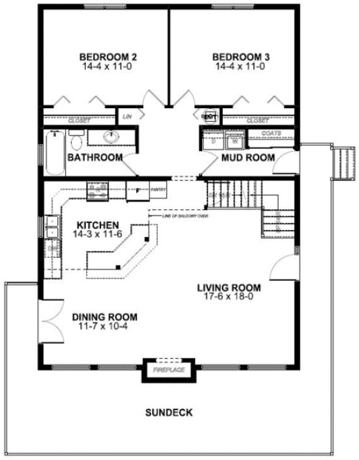
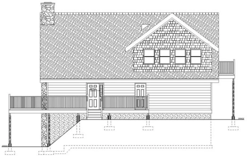
Here is the perfect recreational or year-round home. Big rooms, plenty of closet and storage space, and lots of glass to enjoy the view. The width and depth shown includes the decks, the actual house size without decks is 30'-0" x 42'-0". View See also Plan No.195005.
Specifications
Total 1915 sq ft
- Main: 1269
- Second: 646
- Third: 0
- Loft/Bonus: 0
- Basement: 1269
- Garage: 0
Rooms
- Beds: 3
- Baths: 2
- 1/2 Bath: 0
- 3/4 Bath: 0
Ceiling Height
- Main: 8'0
- Second: 8'0
- Third:
- Loft/Bonus:
- Basement: 8'0
- Garage:
Details
- Exterior Walls: 2x6
- Garage Type:
- Width: 38'0
- Depth: 58'0
Roof
- Max Ridge Height: 27'10
- Comments: ()
- Primary Pitch: 12/12
- Secondary Pitch: 9/12
Add to Cart
Pricing
– westhomeplanners.com
– westhomeplanners.com
– westhomeplanners.com
– westhomeplanners.com
– westhomeplanners.com
– westhomeplanners.com
– westhomeplanners.com
– westhomeplanners.com
– westhomeplanners.com
[Back to Search Results]

833–493–0942







