Plan No.200279
Compact Charmer
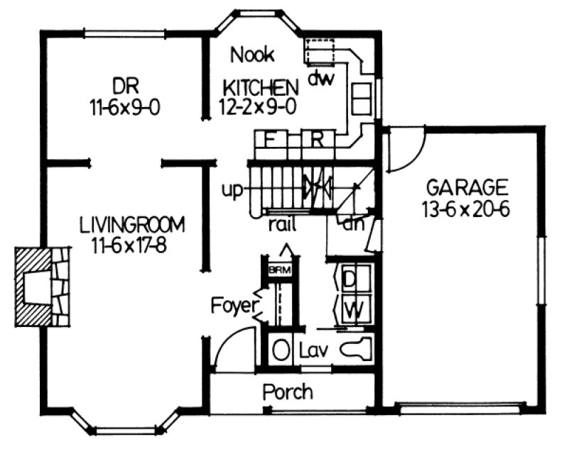
The excellent traffic pattern and good zoning of living areas will provide years of pleasant living. Long sight-lines make this house seem much larger than it is. An open staircase leads up to three good-sized bedrooms, a family bathroom and a master ensuite.
Specifications
Total 1206 sq ft
- Main: 670
- Second: 536
- Third: 536
- Loft/Bonus: 0
- Basement: 650
- Garage: 263
Rooms
- Beds: 3
- Baths: 1
- 1/2 Bath: 2
- 3/4 Bath: 0
Ceiling Height
- Main: 8'0
- Second: 8'0
- Third:
- Loft/Bonus:
- Basement: 8'0
- Garage: 9'4
Details
- Exterior Walls: 2x6
- Garage Type: singleGarage
- Width: 37'0
- Depth: 31'0
Roof
- Max Ridge Height: 26'6
- Comments: ()
- Primary Pitch: 8/12
- Secondary Pitch: 0/12
Add to Cart
Pricing
– westhomeplanners.com
– westhomeplanners.com
– westhomeplanners.com
– westhomeplanners.com
[Back to Search Results]

833–493–0942


