Plan No.333282
Popular Shingled Craftsman
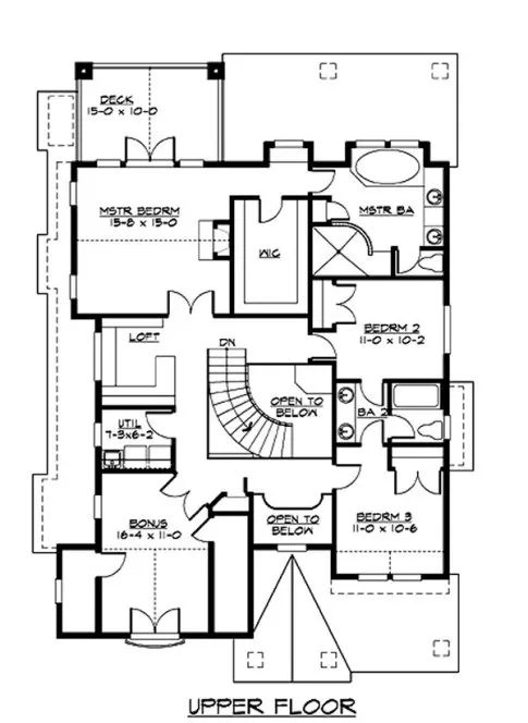
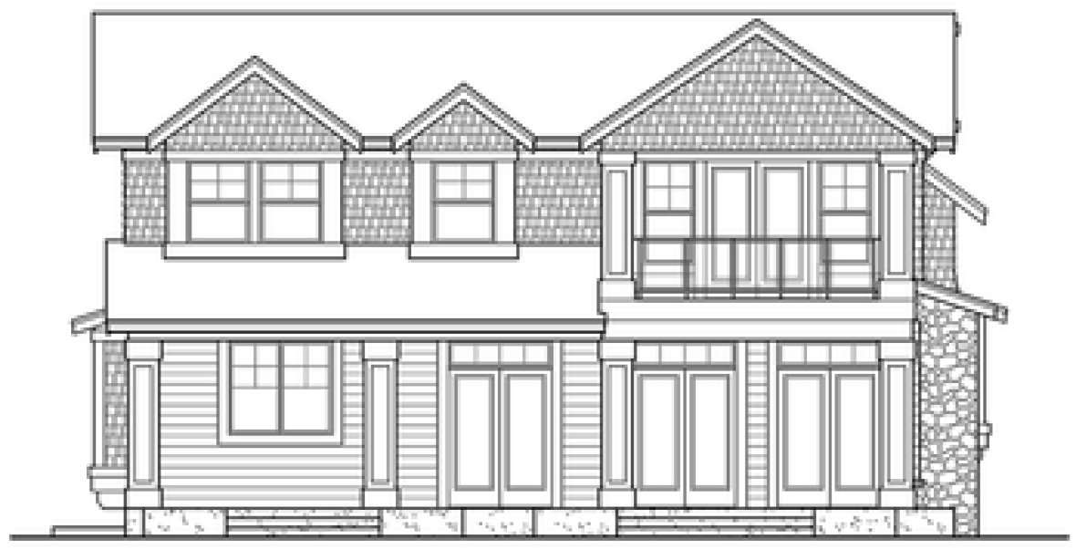
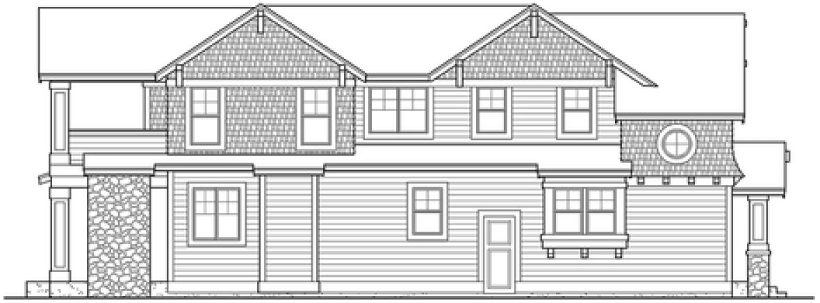
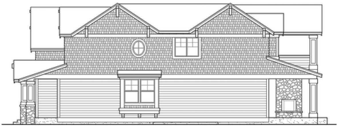
Welcoming the challenge of creating impactful curb appeal and an open-living floor plan to fit a compact footprint, this design delivers on all counts. This popular plan offers a dynamic gabled exterior accented with brackets and stone. A dramatic foyer and luxurious curved stair lead to an oversize great room, nook and kitchen, complemented by a huge covered rear porch with fireplace. A formal dining room with walk-in pantry and butlery plus a work-at-home den complete the main floor. A luxury master suite with covered deck, two bedrooms with a Jack-and-Jill bath, a bonus room, loft-study and laundry comprise the upper floor.
Specifications
Total 3386 sq ft
- Main: 1400
- Second: 1423
- Third: 0
- Loft/Bonus: 0
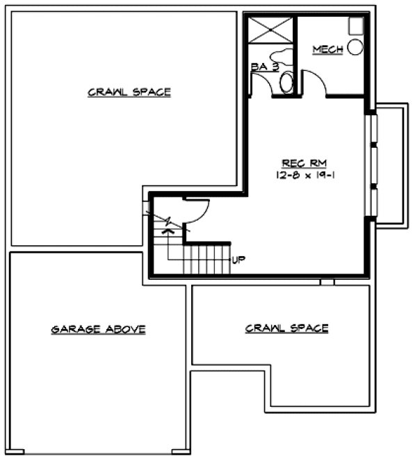
- Basement: 0
- Garage: 414
Rooms
- Beds: 3
- Baths: 2
- 1/2 Bath: 1
- 3/4 Bath: 1
Ceiling Height
- Main: 9'-0
- Second: 8'0
- Third:
- Loft/Bonus:
- Basement:
- Garage:
Details
- Exterior Walls: 2x6
- Garage Type: doubleGarage
- Width: 40'0
- Depth: 62'0
Roof
- Max Ridge Height: 24'0
- Comments: (Main Fl to Peak)
- Primary Pitch: 8/12
- Secondary Pitch: 9/12
Add to Cart
Pricing
– westhomeplanners.com
– westhomeplanners.com
– westhomeplanners.com
– westhomeplanners.com
Rear Rendering – westhomeplanners.com
Front Photo – westhomeplanners.com
Builder Modified - 3 Car – westhomeplanners.com
Foyer – westhomeplanners.com
Nook / Kitchen – westhomeplanners.com
Master Bedroom – westhomeplanners.com
Master Bath – westhomeplanners.com
Kitchen – westhomeplanners.com
Kitchen – westhomeplanners.com
Great Room – westhomeplanners.com
Dining – westhomeplanners.com
Den – westhomeplanners.com
Bonus Room – westhomeplanners.com
Bedroom 3 – westhomeplanners.com
Bedroom 2 – westhomeplanners.com
Family Bath – westhomeplanners.com
Staircase – westhomeplanners.com
Open Foyer – westhomeplanners.com
– westhomeplanners.com
– westhomeplanners.com
– westhomeplanners.com
[Back to Search Results]

833–493–0942























