Plan No.321109
Quaint Narrow Home
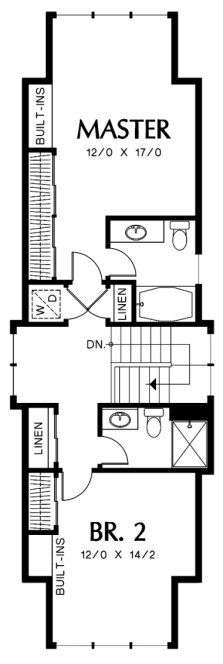
This sliver of a home can skim into sites where land is a precious commodity. The quaint facade–with its shake shingles, paneled door, and carriage-style garage door–resembles a charming fisherman's cottage. The front and garage door entrances lead into the foyer where a U-shape staircase connects to the upper level. Beyond the entrance, the kitchen unfolds into a common living and dining room area. Without walls for definition, the floor plan's openness counteracts the narrowness of the design. Windows along the sides and a set of French doors at the rear illuminate the living areas, furthering a sense of roominess. Two bedrooms border the front and rear ends of the upper-level. The master suite is at the back of the plan with windows that wrap around a bump-out space. This perch provides a panoramic view, ideal in situations where the vista is only available from the second level. To conserve floor space, dressers in both bedrooms are built into a recess in the wall and a hall closet houses a stackable washer/dryer unit.
Specifications
Total 1247 sq ft
- Main: 535
- Second: 712
- Third: 0
- Loft/Bonus: 0
- Basement: 0
- Garage: 222
Rooms
- Beds: 2
- Baths: 2
- 1/2 Bath: 0
- 3/4 Bath: 0
Ceiling Height
- Main: 9'0
- Second: 8'0
- Third:
- Loft/Bonus:
- Basement:
- Garage:
Details
- Exterior Walls: 2x6
- Garage Type: singleGarage
- Width: 17'0
- Depth: 64'0
Roof
- Max Ridge Height: 29'7
- Comments: (Main Floor to Peak)
- Primary Pitch: 8/12
- Secondary Pitch: 0/12

833–493–0942


