Plan No.324412
Charming Exterior
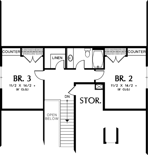
Captivating and just the right size, this striking home is sided in a pleasing mix of materials: cedar shingles, lap siding, cedar battens and stone. A dormer window over the garage complements the charming exterior. A covered entry gives way to a center hallway leading to main-level accommodations. To the left of the hall is a versatile home office with built-ins and a storage area. The stairway climbs to an upper level that holds two bedrooms with built-in counters. A shared hall bath has the use of a huge walk-in linen closet. The living and dining areas are to the back of the main level and are spacious and open. Nice touches in the living room include a vaulted ceiling, a fireplace and a built-in media center. The dining room has a recessed niche for a hutch. The master suite is also on the main level. Its special appointments? A vaulted salon, a bath with spa tub and separate shower, and a massive walk-in closet. Look for a laundry room and half-bath nearby. ADDITIONAL NOTES: Unlimited Build License issued on CAD File orders. Regarding PDF or CAD File Orders: Designer requires that a End User License Agreement be signed before fulfilling PDF and CAD File order.
Specifications
Total 2032 sq ft
- Main: 1407
- Second: 625
- Third: 0
- Loft/Bonus: 0
- Basement: 0
- Garage: 440
Rooms
- Beds: 3
- Baths: 2
- 1/2 Bath: 1
- 3/4 Bath: 0
Ceiling Height
- Main: 9'0
- Second: 8'0
- Third:
- Loft/Bonus:
- Basement:
- Garage:
Details
- Exterior Walls: 2x6
- Garage Type: 2 Car Garage
- Width: 40'0
- Depth: 56'0
Roof
- Max Ridge Height: 25'5
- Comments: (Main Floor to Peak)
- Primary Pitch: 9/12
- Secondary Pitch: 0/12

833–493–0942



