Plan No.752514
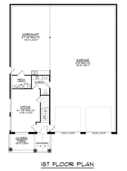
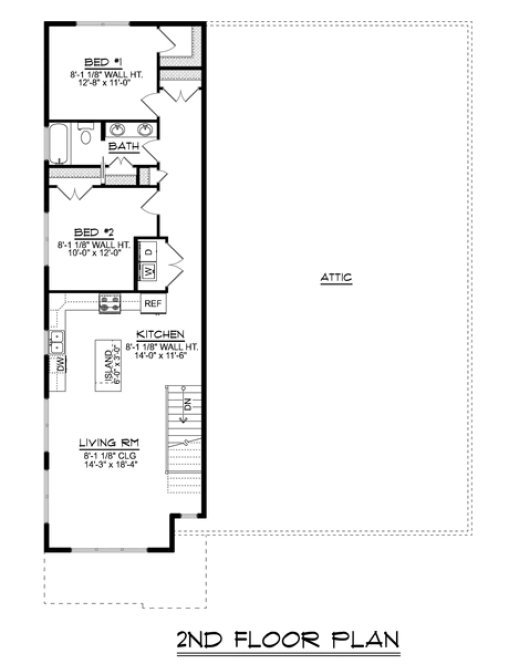
Square Footage Breakdown: Garage = 2495 sq. ft., Main Floor heated area = 499 sq. ft., Second Floor heated area = 1158 sq. ft. TOTAL HEATED LIVING AREA = 1657 SQ. FT.
Specifications
Total 4152 sq ft
- Main: 2994
- Second: 1158
- Third: 0
- Loft/Bonus: 0
- Basement: 0
- Garage: 2495
Rooms
- Beds: 2
- Baths: 1
- 1/2 Bath: 1
- 3/4 Bath: 0
Ceiling Height
- Main: 9'0
- Second: 8'0
- Third:
- Loft/Bonus:
- Basement:
- Garage:
Details
- Exterior Walls: 2x6
- Garage Type: 3 Car Garage
- Width: 50'0
- Depth: 68'6
Roof
- Max Ridge Height: 24'3
- Comments: (Main Floor to Peak)
- Primary Pitch: 7/12
- Secondary Pitch: 4/12
Add to Cart
Pricing
– westhomeplanners.com
– westhomeplanners.com
– westhomeplanners.com
Front – westhomeplanners.com
Rear & Left – westhomeplanners.com
Right & Rear – westhomeplanners.com
Front & Right – westhomeplanners.com
Bath – westhomeplanners.com
Bedroom 1 – westhomeplanners.com
Bedroom 2 – westhomeplanners.com
Bedroom 2 – westhomeplanners.com
Bedroom 1 – westhomeplanners.com
Bedroom Hallway – westhomeplanners.com
Kitchen Island – westhomeplanners.com
Living Area – westhomeplanners.com
Kitchen – westhomeplanners.com
Kitchenette – westhomeplanners.com
Living – westhomeplanners.com
Living – westhomeplanners.com
Living – westhomeplanners.com
Office – westhomeplanners.com
[Back to Search Results]

833–493–0942



















