Plan No.141092
Rustic Getaway
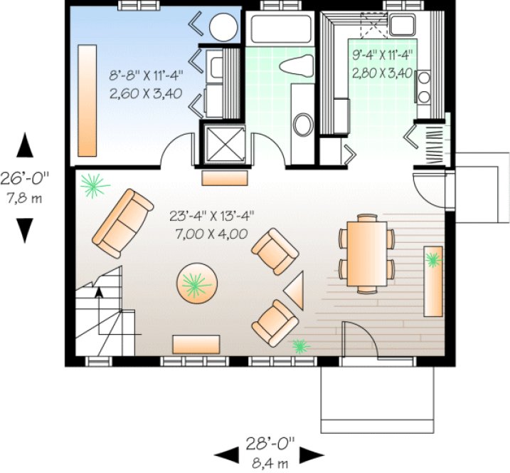
This rustic getaway home's functional design provides all the comforts you need for a relaxing vacation. A soaring ceiling creates a dramatic airiness in the Livingroom and the Dining Room and you can overlook this area from the second floor. Note the large Storage Room or Study which contains laundry facilities.
Specifications
Total 1175 sq ft
- Main: 728
- Second: 447
- Third: 0
- Loft/Bonus: 0
- Basement: 0
- Garage: 0
Rooms
- Beds: 2
- Baths: 1
- 1/2 Bath: 1
- 3/4 Bath: 0
Ceiling Height
- Main: 8'0
- Second: 8'0
- Third:
- Loft/Bonus:
- Basement:
- Garage:
Details
- Exterior Walls: 2x6
- Garage Type:
- Width: 28'0
- Depth: 26'0
Roof
- Max Ridge Height: 25'8
- Comments: ()
- Primary Pitch: 12/12
- Secondary Pitch: 6/12
Add to Cart
Pricing
– westhomeplanners.com
– westhomeplanners.com
– westhomeplanners.com
– westhomeplanners.com
[Back to Search Results]

833–493–0942


