Plan No.473613
Vivacious Victorian
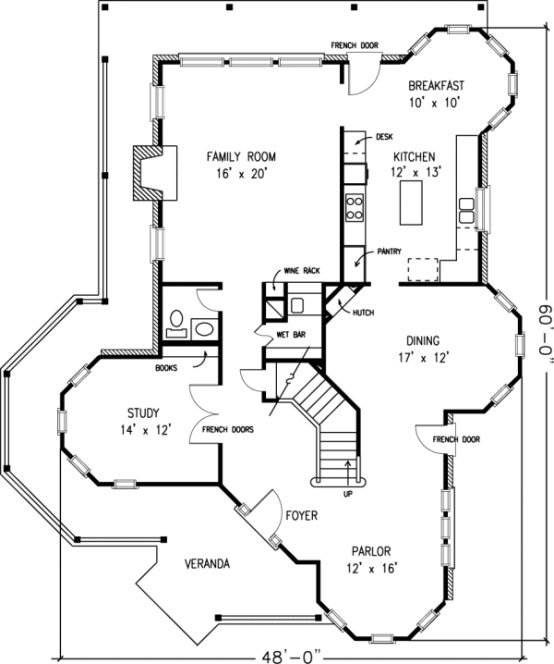
The facade of this classic Victorian home is enhanced by a covered veranda bordering three sides. Inside, the modern interior begins with an airy two-story foyer that flows directly into a cozy bayed parlor. Past a bright window wall and a door to the side yard, the bay-windowed formal dining room boasts a wonderful built-in china hutch. Behind bifold doors, the island kitchen sports a nifty built-in desk and a cheery bayed morning room with speedy access to the veranda. Beautiful views are also offered from the family room, which flaunts a handsome fireplace, a wet bar and a wine rack. French doors access a bayed study that may be used as an extra bedroom. An angled staircase leads up to three secondary bedrooms, one of which has a 13-ft. ceiling. A compartmentalized bath and a laundry room are nearby. At the end of the hall, the master bedroom features a long, private deck. The gorgeous master bath offers a stunning, bay-windowed bathing area. Unless otherwise noted, each room has a 9-ft. ceiling.
Specifications
Total 3163 sq ft
- Main: 1565
- Second: 1598
- Third: 0
- Loft/Bonus: 0
- Basement: 0
- Garage: 0
Rooms
- Beds: 4
- Baths: 2
- 1/2 Bath: 1
- 3/4 Bath: 0
Ceiling Height
- Main: 9'0"
- Second: 9'0"
- Third:
- Loft/Bonus:
- Basement:
- Garage:
Details
- Exterior Walls: 2x4
- Garage Type:
- Width: 48'0"
- Depth: 60'0"
Roof
- Max Ridge Height: 37'0"
- Comments: ()
- Primary Pitch: 0/12
- Secondary Pitch: 0/12

833–493–0942

