Plan No.478911
Economy with a Touch of Class
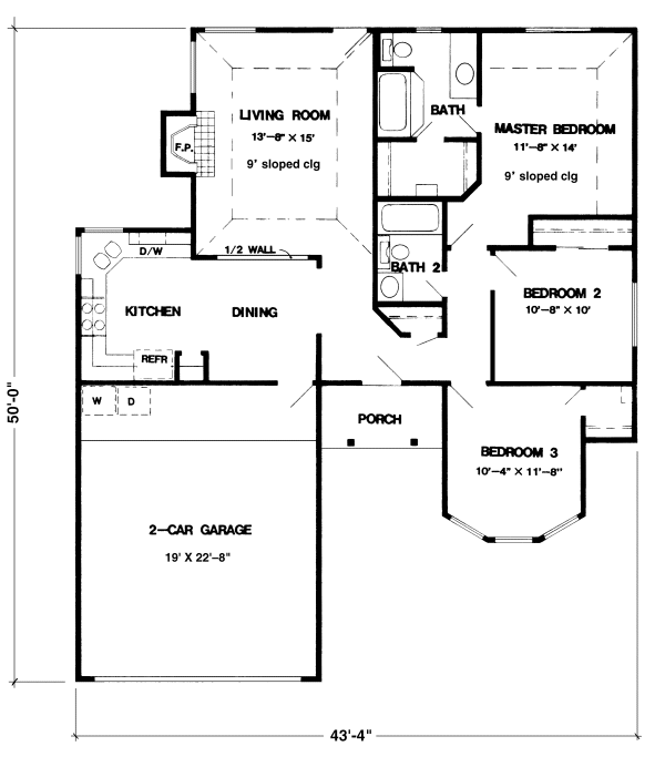
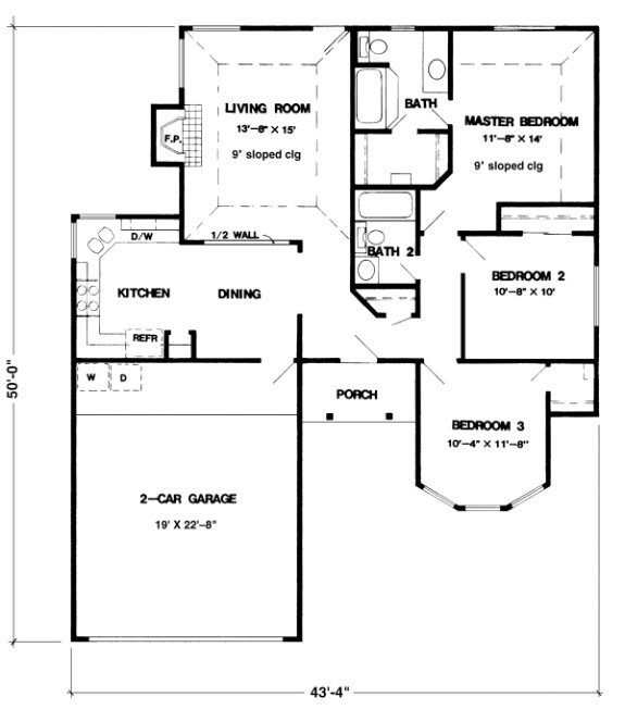
This affordable plan offers elegant detailing on the outside and lots of amenities inside. In from the charming front porch, the entry leads to the formal dining room on the left. A half-wall separates the dining room from the living room, which features a cozy fireplace and an elegant tray ceiling. The roomy U-shaped kitchen opens to the dining room for maximum efficiency.
Specifications
Total 1198 sq ft
- Main: 1198
- Second: 0
- Third: 0
- Loft/Bonus: 0
- Basement: 0
- Garage: 431
Rooms
- Beds: 3
- Baths: 2
- 1/2 Bath: 0
- 3/4 Bath: 0
Ceiling Height
- Main: 8'0"
- Second:
- Third:
- Loft/Bonus:
- Basement:
- Garage: 9'4"
Details
- Exterior Walls: 2x4
- Garage Type: doubleGarage
- Width: 43'4"
- Depth: 50'0"
Roof
- Max Ridge Height: 17'0"
- Comments: ()
- Primary Pitch: 0/12
- Secondary Pitch: 0/12
Add to Cart
Pricing
Full Rendering – westhomeplanners.com
MAIN Plan – westhomeplanners.com
[Back to Search Results]

833–493–0942
