Plan No.474440
Classic Retreat
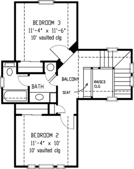
Inspired by the late-19th-century summer cottages along the East Coast, this versatile design is suitable as a primary residence or as a cozy weekend retreat. The floor plan is practically sized and is expanded by a deep veranda and a screened porch, which serve as additional entertaining areas. At the entry, a leaded-glass door opens to a dramatic two-story foyer and turned staircase. A view into the living area reveals a warm woodstove and plenty of space for unwinding after work or a long day of fishing. A dining area is nestled between two sets of sliding French doors. The kitchen's central location and convenient serving bar to the living area make it simple yet functional. Enticing double doors gain access to the master bedroom on the main floor. Enjoy stepping out to the screened porch or into your private bath, with its handy pocket door to the utility room. Two more bedrooms share another bath on the upper floor. The blueprints include plans for a detached two-car garage.
Specifications
Total 1442 sq ft
- Main: 978
- Second: 464
- Third: 0
- Loft/Bonus: 0
- Basement: 0
- Garage: 528
Rooms
- Beds: 3
- Baths: 2
- 1/2 Bath: 0
- 3/4 Bath: 0
Ceiling Height
- Main: 9'0
- Second: 8'0
- Third:
- Loft/Bonus:
- Basement:
- Garage: 10'4
Details
- Exterior Walls: 2x4
- Garage Type: doubleGarage
- Width: 35'8
- Depth: 44'8
Roof
- Max Ridge Height: 27'0
- Comments: ()
- Primary Pitch: 14/12
- Secondary Pitch: 4/12

833–493–0942








