Plan No.473030
Porch And Patio Add Pizzazz!
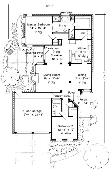
A front porch makes a pleasant place for outdoor relaxation in this home, while the covered side patio serves as an outdoor entertaining space. The living room features a fabulous fireplace flanked by windows and opens to the dining room. The efficient kitchen overlooks the sunny breakfast nook, which features a French door to the patio.
Specifications
Total 1706 sq ft
- Main: 1706
- Second: 0
- Third: 0
- Loft/Bonus: 0
- Basement: 0
- Garage: 414
Rooms
- Beds: 2
- Baths: 2
- 1/2 Bath: 0
- 3/4 Bath: 0
Ceiling Height
- Main: 9'0"
- Second:
- Third:
- Loft/Bonus:
- Basement:
- Garage: 10'4"
Details
- Exterior Walls: 2x4
- Garage Type: doubleGarage
- Width: 42'0"
- Depth: 67'8"
Roof
- Max Ridge Height: 22'0"
- Comments: ()
- Primary Pitch: 0/12
- Secondary Pitch: 0/12
Add to Cart
Pricing
– westhomeplanners.com
– westhomeplanners.com
[Back to Search Results]

833–493–0942
