Plan No.472220
Comfort for Guests
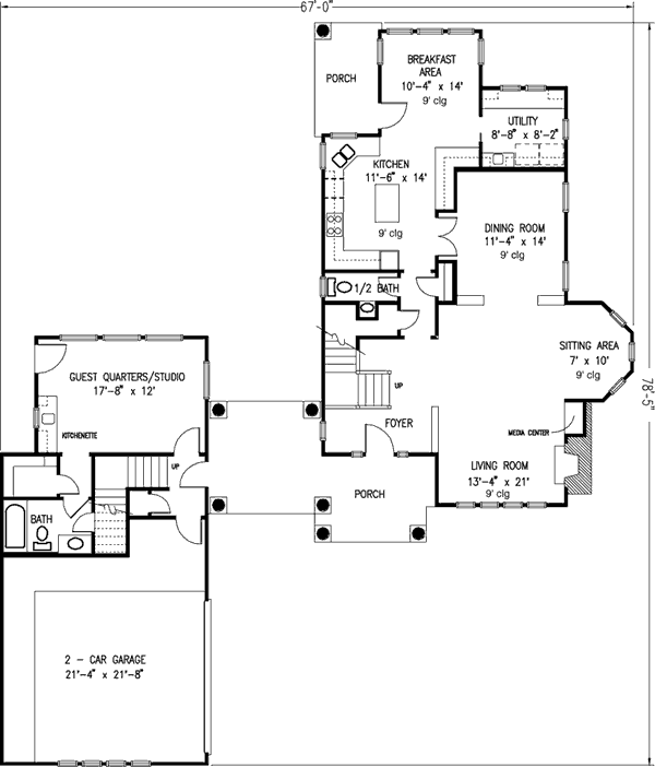
A covered walkway extends from the front porch and connects the main floor of this classy country home to cozy, completely furbished guest quarters adjoining the garage. This detached suite, complete with kitchenette, could easily be used as a private in-law suite. Above the garage, a bonus room with space for built-in bookshelves can be used as an office or quiet study space. A pair of dormer windows brighten the room nicely. A low wall separates the foyer from the living room, which offers a cute bayed sitting area, a warm fireplace and a media center for prime entertainment. The formal dining room is open to the living room, set off by two low walls. Double doors close out kitchen noise. Around the corner from a handy powder room, the island kitchen boasts plenty of counter space and a cheery breakfast area. A covered porch is easily accessed from the kitchen and laundry facilities are just steps away. Upstairs, a balcony hall leads to the roomy master bedroom with a large walk-in closet.
Specifications
Total 2883 sq ft
- Main: 1647
- Second: 1236
- Third: 0
- Loft/Bonus: 0
- Basement: 0
- Garage: 517
Rooms
- Beds: 3
- Baths: 3
- 1/2 Bath: 1
- 3/4 Bath: 0
Ceiling Height
- Main: 9'0
- Second: 8'0
- Third:
- Loft/Bonus:
- Basement:
- Garage: 10'4
Details
- Exterior Walls: 2x4
- Garage Type: doubleGarage
- Width: 67'0
- Depth: 78'5
Roof
- Max Ridge Height: 29'0
- Comments: ()
- Primary Pitch: 0/12
- Secondary Pitch: 0/12

833–493–0942

