Plan No.477810
Simply Elegant
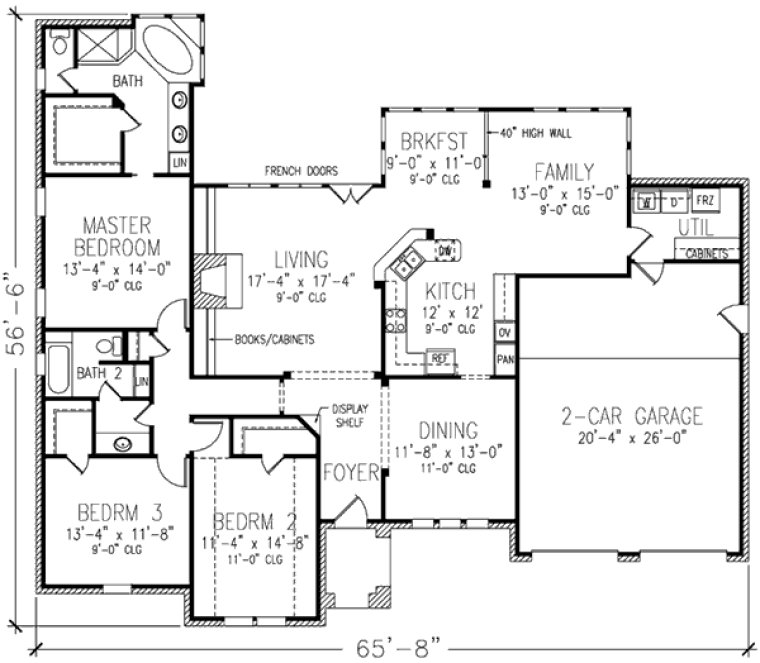
The central living room of this design features a handsome fireplace flanked by built-in bookcases. French doors lead to the backyard. A half-wall separates the family room from the sun-drenched breakfast nook; The kitchen efficiently serves both areas. The master suite has a private bath with a fantastic corner garden tub and a big walk-in closet.
Specifications
Total 2185 sq ft
- Main: 2185
- Second: 0
- Third: 0
- Loft/Bonus: 0
- Basement: 0
- Garage: 529
Rooms
- Beds: 3
- Baths: 2
- 1/2 Bath: 0
- 3/4 Bath: 0
Ceiling Height
- Main: 9'0"
- Second:
- Third:
- Loft/Bonus:
- Basement:
- Garage: 10'4"
Details
- Exterior Walls: 2x4
- Garage Type: doubleGarage
- Width: 65'8"
- Depth: 56'6"
Roof
- Max Ridge Height: 23'0"
- Comments: ()
- Primary Pitch: 0/12
- Secondary Pitch: 0/12
Add to Cart
Pricing
– westhomeplanners.com
– westhomeplanners.com
[Back to Search Results]

833–493–0942
