Plan No.476410
Charming English Cottage
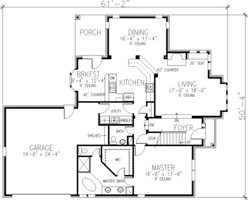
This charming design, inspired by the cozy cottages that dot the English countryside, offers a fully updated floor plan. A raised foyer leads into the living room, which features a window seat next to a handsome fireplace. The kitchen is fronted by a snack bar flanked by decorative columns. A French door in the adjoining breakfast nook access a covered rear porch. The first-floor master suite features a private bath with a big walk-in closet.
Specifications
Total 2146 sq ft
- Main: 1554
- Second: 592
- Third: 0
- Loft/Bonus: 0
- Basement: 0
- Garage: 478
Rooms
- Beds: 3
- Baths: 2
- 1/2 Bath: 1
- 3/4 Bath: 0
Ceiling Height
- Main: 9'0"
- Second: 9'0"
- Third:
- Loft/Bonus:
- Basement:
- Garage: 10'4"
Details
- Exterior Walls: 2x4
- Garage Type: doubleGarage
- Width: 61'2"
- Depth: 50'4"
Roof
- Max Ridge Height: 25'0"
- Comments: ()
- Primary Pitch: 10/12
- Secondary Pitch: 0/12
Add to Cart
Pricing
– westhomeplanners.com
– westhomeplanners.com
– westhomeplanners.com
[Back to Search Results]

833–493–0942

