Plan No.473210
Shingled Bungalow
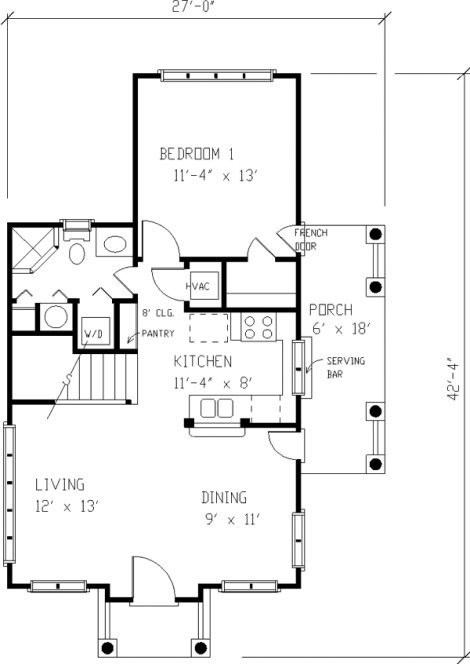
This charming bungalow will delight smaller families with its quaint exterior and up-to-date interior. The living and dining rooms are open to each other to create a large entertainment area. The kitchen features two handy serving bars. The main floor bedroom accesses the side porch through a French door. The upstairs loft has a dramatic cathedral ceiling, please note that the loft or second floor area of 342 sq. ft. includes the attic storage space.
Specifications
Total 1035 sq ft
- Main: 693
- Second: 342
- Third: 0
- Loft/Bonus: 0
- Basement: 0
- Garage: 0
Rooms
- Beds: 2
- Baths: 2
- 1/2 Bath: 0
- 3/4 Bath: 0
Ceiling Height
- Main: 8'0
- Second: 8'0
- Third:
- Loft/Bonus:
- Basement:
- Garage:
Details
- Exterior Walls: 2x4
- Garage Type:
- Width: 27'0
- Depth: 42'4
Roof
- Max Ridge Height: 24'0
- Comments: ()
- Primary Pitch: 12/12
- Secondary Pitch: 0/12
Add to Cart
Pricing
– westhomeplanners.com
– westhomeplanners.com
– westhomeplanners.com
Living & Dining Rooms – westhomeplanners.com
– westhomeplanners.com
– westhomeplanners.com
– westhomeplanners.com
[Back to Search Results]

833–493–0942





