Plan No.478800
Country Veranda
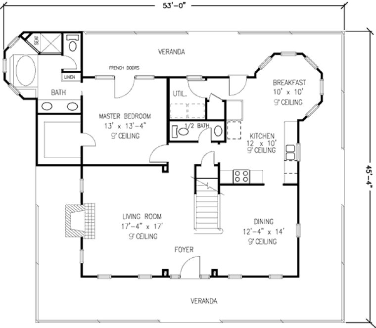
A charming covered veranda that wraps around every side of this country home beckons family and friends for tranquil afternoons on the porch. The bright sidelighted front door opens to the enormous living room and the elegant dining room, where a cozy fireplace adds a warm glow. The kitchen, which is conveniently located close to the dining room, embraces a sun-drenched octagonal breakfast nook. A sunny French door nearby opens to the rear veranda. The secluded master bedroom on the main floor features a sunny wall of windows, private access to the veranda through a French door and an enormous walk-in closet. The posh master bath features an inviting oval tub that is adorned with a neat planter. The bath also includes a separate shower and a dual-sink vanity. Upstairs, two good-sized bedrooms flank a sunny sitting area that could also serve as a playroom or a study.
Specifications
Total 2059 sq ft
- Main: 1308
- Second: 751
- Third: 0
- Loft/Bonus: 0
- Basement: 0
- Garage: 0
Rooms
- Beds: 3
- Baths: 2
- 1/2 Bath: 1
- 3/4 Bath: 0
Ceiling Height
- Main: 9'0"
- Second: 9'0"
- Third:
- Loft/Bonus:
- Basement:
- Garage:
Details
- Exterior Walls: 2x4
- Garage Type:
- Width: 53'0"
- Depth: 45'4"
Roof
- Max Ridge Height:
- Comments: ()
- Primary Pitch: 12/12
- Secondary Pitch: 0/12

833–493–0942






