Plan No.472400
Farmhouse Grandeur
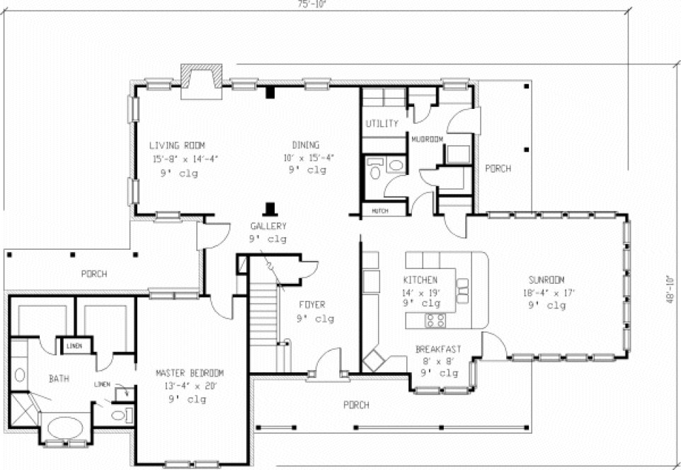
With its sprawling porch and Victorian-era gingerbread trim, this design is unsurpassed for both formal entertaining and casual living. The gallery leads to the enormous living and dining area. The spectacular kitchen opens to a windowed breakfast alcove and a light-filled sun room. The main-floor master bedroom is a secluded retreat and flaunts a private bath.
Specifications
Total 3040 sq ft
- Main: 2232
- Second: 808
- Third: 0
- Loft/Bonus: 0
- Basement: 0
- Garage: 0
Rooms
- Beds: 3
- Baths: 3
- 1/2 Bath: 1
- 3/4 Bath: 0
Ceiling Height
- Main: 9'0"
- Second: 9'0"
- Third:
- Loft/Bonus:
- Basement:
- Garage:
Details
- Exterior Walls: 2x4
- Garage Type:
- Width: 75'10"
- Depth: 48'10"
Roof
- Max Ridge Height: 31'0"
- Comments: ()
- Primary Pitch: 14/12
- Secondary Pitch: 0/12
Add to Cart
Pricing
– westhomeplanners.com
– westhomeplanners.com
– westhomeplanners.com
[Back to Search Results]

833–493–0942

