Plan No.474000
Design on Demand
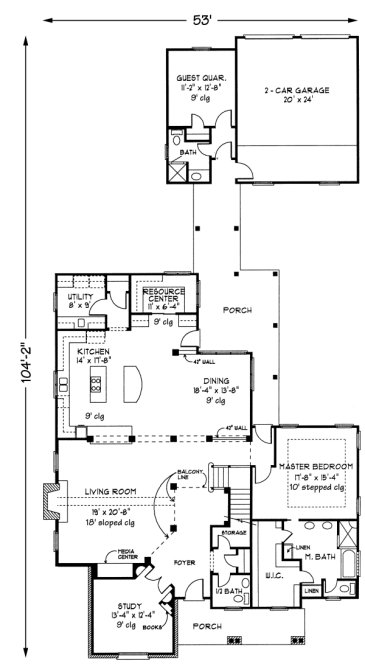
This all-encompassing home is the result of a Baby Boomer marketing study. The Baby Boomers loved the concept of traditional neighborhood design and offered their opinions of what a home's floor plan should include--all of which are contained in this home: 1. Master bedroom down 2. A single dining area. 3. A standard tub in the master bath. 4. A larger shower in the master bath. 5. Detached quarters for home office or a private living space for an aging parent. 6. Separate spaces for computer use (accomplished by including a "Resource Center" and a study). Note also the courtyard space formed by the home's footprint and the detached, two-car garage. There's room enough here for a small pool, if desired. The home's exterior is an eclectic mix of American country and European flair.
Specifications
Total 3148 sq ft
- Main: 2603
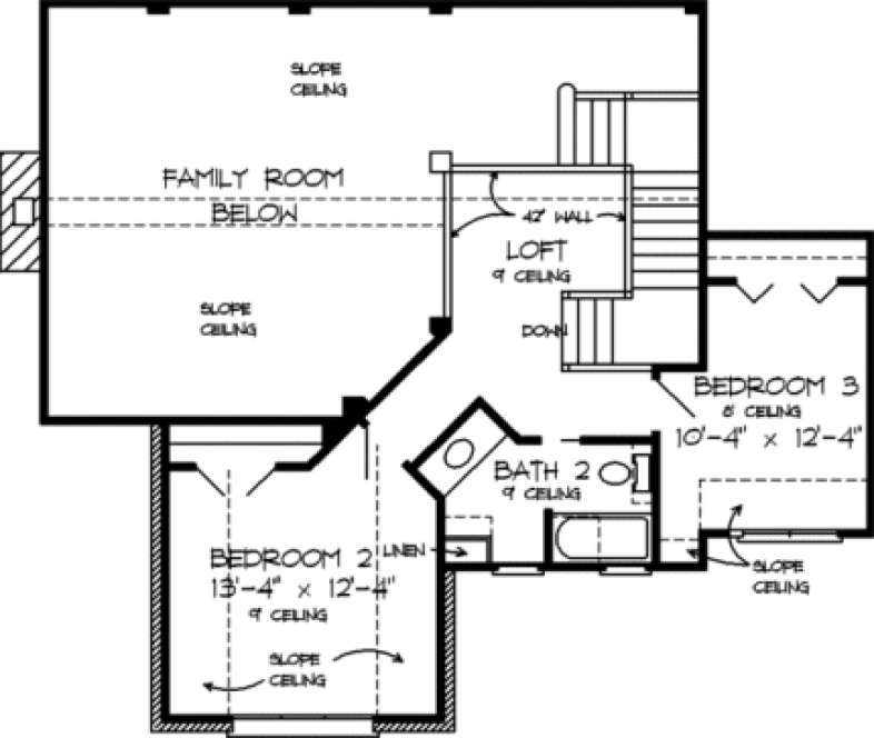
- Second: 545
- Third: 0
- Loft/Bonus: 0
- Basement: 0
- Garage: 480
Rooms
- Beds: 5
- Baths: 3
- 1/2 Bath: 1
- 3/4 Bath: 0
Ceiling Height
- Main: 9'0"
- Second: 8'0"
- Third:
- Loft/Bonus:
- Basement:
- Garage: 10'4"
Details
- Exterior Walls: 2x4
- Garage Type: doubleGarage
- Width: 53'0"
- Depth: 104'2"
Roof
- Max Ridge Height: 26'0"
- Comments: ()
- Primary Pitch: 10/12
- Secondary Pitch: 12/12

833–493–0942

