Plan No.440472
Elegant Two Story
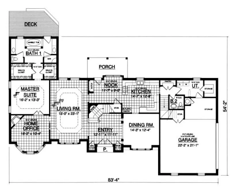
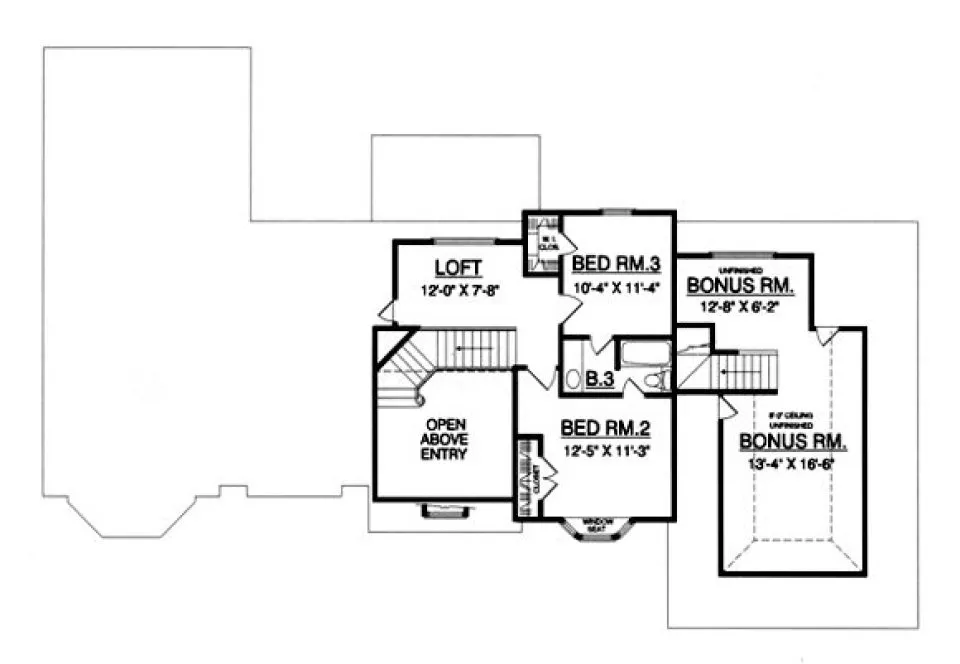
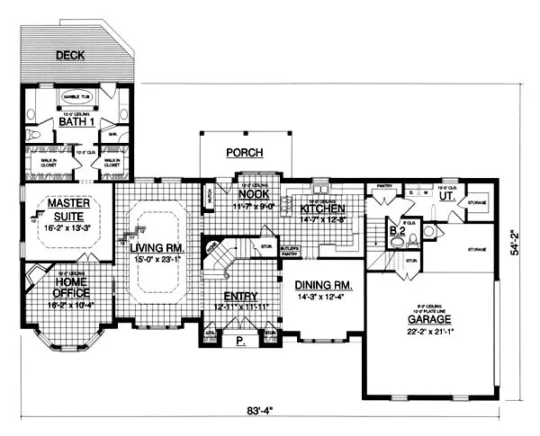
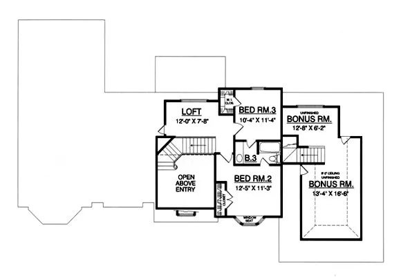
This elegant two-story French style home offers an open, spacious interior with a double step up ceiling in the living room and formal dining room. The master suite boasts a luxurious master bath with a marble tub, walk-in shower, and his and her walk in closets. Upstairs two additional large bedrooms share a convenient Jack and Jill bath This home is perfect for any size family. An optional bonus room, which adds 337 sq. ft. to the home upon completion, can serve as a home office or guest room.
Specifications
Total 2740 sq ft
- Main: 2195
- Second: 545
- Third: 0
- Loft/Bonus: 337
- Basement: 0
- Garage: 652
Rooms
- Beds: 3
- Baths: 2
- 1/2 Bath: 1
- 3/4 Bath: 0
Ceiling Height
- Main: 10'0
- Second: 8'0
- Third:
- Loft/Bonus: 8'0"
- Basement:
- Garage: 10'0
Details
- Exterior Walls: 2x4
- Garage Type: doubleGarage
- Width: 83'4
- Depth: 64'2
Roof
- Max Ridge Height: 27'6
- Comments: ()
- Primary Pitch: 12/12
- Secondary Pitch: 0/12
Add to Cart
Pricing
– westhomeplanners.com
– westhomeplanners.com
– westhomeplanners.com
– westhomeplanners.com
[Back to Search Results]

833–493–0942


