Plan No.448152
Unique Arched Entry
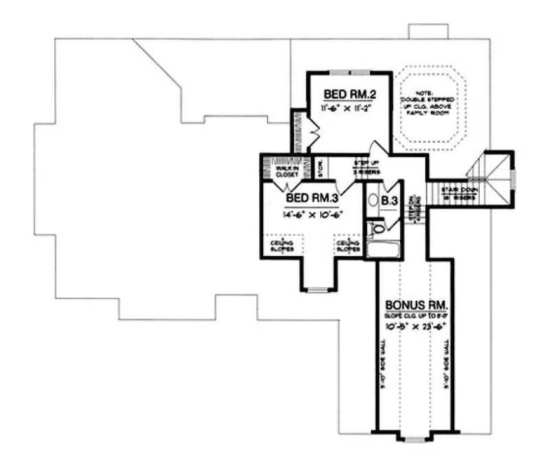
This beautiful traditional stucco home has a unique arched entry with arched windows across the front. The formal living room is off the entry with wood columns, 10-foot high ceiling and a boxed window. The large family room has a double step up ceiling, a warm fireplace, and media center and is opened to the kitchen, which would be great for entertaining. The formal dining room has a 12-foot high ceiling with wood columns opening to the entry and easy access to the kitchen. The large kitchen has a 10-foot high ceiling, a large pantry, and a raised snack bar on each side of wood columns and a breakfast nook with a bay window and opens to the family room. There is a private study off the entry with a 12-foot high ceiling. The master suite has a step up ceiling, fireplace, walk-in closet and boasts a large bath with his and her vanities, a step up marble tub with wood columns on each side, a glass shower with a seat and a large walk-in closet. Upstairs are two additional bedrooms with ample storage and share a convenient bath. Upstairs also has an optional bonus room, which would add 290 sq. ft. to the total finished area when completed.
Specifications
Total 2518 sq ft
- Main: 2030
- Second: 488
- Third: 0
- Loft/Bonus: 290
- Basement: 0
- Garage: 503
Rooms
- Beds: 3
- Baths: 2
- 1/2 Bath: 1
- 3/4 Bath: 0
Ceiling Height
- Main: 10'0
- Second: 8'0
- Third:
- Loft/Bonus: 8'0"
- Basement:
- Garage: 11'0
Details
- Exterior Walls: 2x4
- Garage Type: doubleGarage
- Width: 68'4 1/2
- Depth: 55'1
Roof
- Max Ridge Height: 28'3
- Comments: ()
- Primary Pitch: 10/12
- Secondary Pitch: 0/12

833–493–0942




