Plan No.447242
Country Beauty
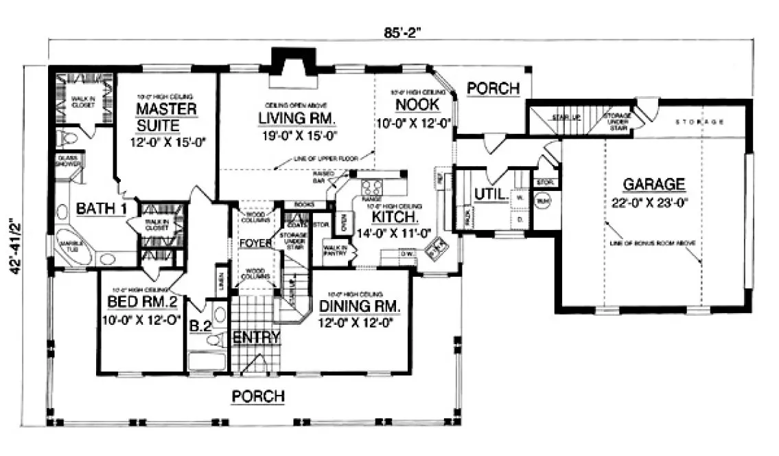
This beautiful country home has a large front porch with wood columns and dormers across the front. The large living room has an open ceiling, warm fireplace and is opened to the kitchen which serves as a great for entertaining. The formal dining room is off the entry with a 10-foot high ceiling and easy access to the kitchen. The kitchen has a 10-foot high ceiling, walk-in pantry, raised snack bar, a breakfast nook and opens to the living room. The master suite has a 10-foot high ceiling and a large master bath with his and her vanities, a corner tub, glass shower and two walk-in closets. Bedroom two has a 10-foot high ceiling and access to a hall bath. Upstairs has a loft and two additional bedrooms with walk-in closets and a shared hall bath. Upstairs also has an optional bonus room, which when completed would add 303 sq. ft. to the total finished area.
Specifications
Total 2427 sq ft
- Main: 1788
- Second: 639
- Third: 0
- Loft/Bonus: 303
- Basement: 0
- Garage: 639
Rooms
- Beds: 4
- Baths: 3
- 1/2 Bath: 0
- 3/4 Bath: 0
Ceiling Height
- Main: 10'0
- Second: 8'0
- Third:
- Loft/Bonus: 8'0"
- Basement:
- Garage: 10'0
Details
- Exterior Walls: 2x4
- Garage Type: doubleGarage
- Width: 85'2
- Depth: 42'4 1/2
Roof
- Max Ridge Height: 26'0
- Comments: ()
- Primary Pitch: 12/12
- Secondary Pitch: 0/12

833–493–0942




